

Igel & Kaufmann GmbH
Herr Patrick Kaufmann
016 ···
Nr. anzeigenPreise & Kosten
Provision für Mieter
Bitte beachte, das Angebot kann bei Vertragsabschluss die Zahlung einer Provision beinhalten. Weitere Informationen erhältst Du vom Anbieter.
Warum sehe ich diese Anzeige? – Du siehst diese Anzeige basierend auf Ihrer Navigation auf unserer Website und den Suchkriterien, die du verwendet hast.
Lage
Isny ist eine der sonnenreichsten Städte in Deutschland und ausgezeichneter Luftkurort. Zwischen den Standorten Leutkirch, Kempten und Wangen zeigt sich Isny als sehr solider Standort mit einer ausgeprägten gefestigten Wirtschaftsstruktur. Dies spiegelt sich auch an der steigenden Bevölkerungszahl wieder. Durch die Ansiedlung...
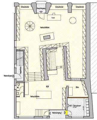
Die Ladenfläche
Kategorie
Verkaufsfläche
Energie & Heizung
Warum sehe ich diese Anzeige? – Du siehst diese Anzeige basierend auf Ihrer Navigation auf unserer Website und den Suchkriterien, die du verwendet hast.
Weitere Energiedaten
Energieträger
Öl
Details
Objektbeschreibung
Diese großzügige Gewerbeeinheit mit einer Fläche von 245 Quadratmetern befindet sich in einer erstklassigen Lage in der Innenstadt von Isny.
Die Immobilie bietet sowohl eine Verkaufsfläche als auch ein separates Büro, ideal für Unternehmen, die eine zentrale Präsenz mit flexiblen Nutzungsmöglichkeiten suchen. Die...
Ausstattung
Highlights:
- Zentrale Lage in Isny
- Große Verkaufsfläche von 245 m² inklusive separatem Büro
- Vielseitig nutzbar für Einzelhandel, Dienstleistung oder Büro
- Hohe Kundenfrequenz durch zentrale Lage
- Einzelhandelszentralitätskennziffer 122,01 %
- Einzelhandelsrelevante Kaufkraftkennziffer 97,4
Weitere Informationen
Sonstiges
Haben wir Ihr Interesse geweckt?
Wir freuen uns auf Ihre Anfrage und ermöglichen Ihnen gerne einen Besichtigungstermin vor Ort.
Stichworte
Wohnfläche: 232,00 m², Nutzfläche: 232,00 m², Ladenfläche: 232,00 m²
Anbieter der Immobilie
Igel & Kaufmann GmbH
Bahnhofstraße 11, 88316 Isny

Online-ID: 2kazx5k
Referenznummer: 7207
Finde Angebote wie dieses
Hier geht es zu unserem Impressum, den Allgemeinen Geschäftsbedingungen, den Hinweisen zum Datenschutz und nutzungsbasierter Online-Werbung.