

SEHNER Immobilien GbR
Eheleute Sylvia und Robert Sehner
029 ···
Nr. anzeigenPreise & Kosten
Provision für Käufer
provisionsfrei
Lage
Das Baugebiet Adamskaserne im Soester "Belgischen Viertel" besticht durch seine verkehrsgünstige Lage und die Nähe zu Schulen, Einkaufsmöglichkeiten und Freizeiteinrichtungen. Geschäfte zur Deckung des täglichen Bedarfs sind fußläufig über einen Spazierweg in unmittelbarer Nähe erreichbar.
Gleichzeitig bietet es eine...
Das Haus
Baujahr
2025
Bezug
2026
Energie & Heizung
Warum sehe ich diese Anzeige? – Du siehst diese Anzeige basierend auf Ihrer Navigation auf unserer Website und den Suchkriterien, die du verwendet hast.
Weitere Energiedaten
Haustyp
Massivhaus
Heizungsart
Fußbodenheizung, Luft-/Wasser-Wärmepumpe
Details
Objektbeschreibung
Projektierter Neubau mit Energieeffizenzklasse A+ im Baugebiet Adam-Kaserne Soest – Modernes Einfamilienhaus mit viel Platz und Komfort - sehr ruhige Lage am Ende einer Sackgasse
Baubeginn Herbst 2025 - Fertigstellung Herbst 2026
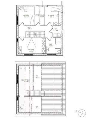
Dieses attraktive, freistehende Einfamilienhaus bietet auf einer Wohnfläche von 164 m²...
Weitere Informationen
Sonstige Angaben
Sämtliche Angaben basieren ausschließlich auf Informationen und Angaben des Eigentümers.
Eine Haftung und / oder Gewähr hinsichtlich der Richtigkeit und Vollständigkeit sowie für die Objekte kann hierfür seitens der SEHNER Immobilien GbR nicht übernommen werden.
Bei allen Geschäften, die Sie mit uns...
Dokumente
Anbieter der Immobilie

Online-ID: 2kb465d
Finde Angebote wie dieses
Hier geht es zu unserem Impressum, den Allgemeinen Geschäftsbedingungen, den Hinweisen zum Datenschutz und nutzungsbasierter Online-Werbung.