
Sächsische Grundstücksauktionen AG
Frau Caroline Böhme
035 ···
Nr. anzeigenPreise & Kosten
Provision für Käufer
Provision: Unsere Vermittlungsprovision beträgt 3,57 % vom Kaufpreis inkl. der gesetzlichen Mehrwertsteuer, ist am Tag der notariellen Beurkundung verdient, fällig und vom Käufer zu zahlen.
Lage
Chemnitz, 2025 Kulturhauptstadt Europas, hat ca. 251.000 Einwohner und ist die drittgrößte Stadt im Freistaat Sachsen. Die Stadt gehörte in den vergangenen Jahren zu den wachstumsstärksten in Deutschland. An der Technischen Universität Chemnitz studieren aktuell ca. 8.000 Studenten. Gute Verkehrsanbindung besteht über die...
Die Wohnung
Wohnanlage
Energie & Heizung
Warum sehe ich diese Anzeige? – Du siehst diese Anzeige basierend auf Ihrer Navigation auf unserer Website und den Suchkriterien, die du verwendet hast.
Energieausweistyp
Verbrauchsausweis
Gebäudetyp
Wohngebäude
Weitere Energiedaten
Energieträger
Gas
Heizungsart
Zentralheizung
Details
Objektbeschreibung
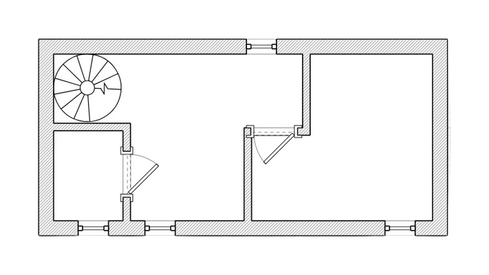
Die Wohnung liegt im Dachgeschoss eines aufwendig sanierten Altbaus und erstreckt sich über zwei Etagen. Im unteren Geschoss befinden sich Flur, Wohnzimmer mit offener Einbauküche, Schlafzimmer sowie ein Bad, das 2025 modernisiert wurde. Die obere Etage umfasst eine Galerie, ein weiteres Zimmer und ein tagesbelichtetes Bad...
Anbieter der Immobilie

Sächsische Grundstücksauktionen AG
Grimmaische Straße 2 - 4, 04109 Leipzig
Online-ID: 2kb995v
Finde Angebote wie dieses
Hier geht es zu unserem Impressum, den Allgemeinen Geschäftsbedingungen, den Hinweisen zum Datenschutz und nutzungsbasierter Online-Werbung.