Vonovia SE-Selbstständiger Vertriebspartner

Herr Oliver Graf

vermietete 4-Zi. Maisonettewohnung in Biebesheim

€ 252.700
Kaufpreis
115,11 m²
Wohnfläche ca.
4
Zimmer

Der Anbieter dieses Objekts hat gegenüber der AVIV Germany GmbH als Betreiber dieses Online-Marktplatzes erklärt, nicht als Unternehmer im Sinne des § 1 KSchG zu handeln. Die im Verbraucherschutzrecht der Union verankerten Verbraucherrechte (insbesondere Informationspflichten und Rücktritts- bzw. Widerrufsrechte) finden auf den Vertrag zwischen dem Anbieter des Objekts und Ihnen (dem Interessenten) keine Anwendung.

Provisionsfrei
Gewerblicher Anbieter

Der Anbieter dieses Objekts hat gegenüber der AVIV Germany GmbH als Betreiber dieses Online-Marktplatzes erklärt, als Unternehmer im Sinne des § 1 KSchG zu handeln.

AdresseHeidelberger Straße 21 b
64584 Biebesheim 
Auf Karte ansehen

Preise & Kosten

Kaufpreis € 252.700 Hausgeld € 492

Provision für Käufer

provisionsfrei

Lage

Biebesheim liegt direkt am Rhein, den Sie in ca. 300 Metern erreichen können. Der Anschluß an das Bundesautobahnnetz ist über Pfungstadt in ca. 15 Minuten vorhanden. Die Bahnverbindung nach Frankfurt am Main ist ebenfalls sehr gut.

Die Geschäfte zur Deckung des täglichen Bedarf sind in Biebesheim fußläufig erreichbar.

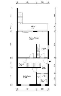
Die Wohnung

Wohnungslage

Erdgeschoss

Derzeitige Nutzung

vermietet

  • Balkon

Wohnanlage

  • Baujahr: 1995

Energie & Heizung

0 50 100 150 200 250 300 350 400 +

Energieausweistyp

Verbrauchsausweis

Gebäudetyp

Wohngebäude

Baujahr laut Energieausweis

1994

Gültigkeit

seit 01.01.2014

Endenergieverbrauch

126,00 kWh/(m²·a) - Warmwasser enthalten

Weitere Energiedaten

Energieträger

Gas

Heizungsart

Zentralheizung

Details

Objektbeschreibung

Wir bieten Ihnen hier eine vermietete Wohnungen zur Kapitalanlage und nicht zum Selbstbezug. Die Wohnung wurde 1994 errichtet.

EIGENBEDARFSKÜNDIGUNG NICHT MÖGLICH!!!

Ein besonderer Aspekt ist aktuell die Altersvorsorge. Sie können mit einem monatlich geringen Beitrag ein Zusatzvermögen aufbauen und haben Ihre...

Mehr anzeigen

Ausstattung

- Keller
- Tageslichtbad
- Balkon

Preisinformation

Soll-Mieteinnahmen pro Jahr: 9.669,24 EUR
Ist-Mieteinnahmen pro Jahr: 9.669,24 EUR

Weitere Informationen

Sonstiges
=== Energieträger laut Energieausweis: Gas ===
Hinweise darüber, wie die Vonovia Ihre personenbezogenen Daten als Interessent verarbeitet, erhalten Sie unter www.vonovia.de/datenschutzinformation. Alle Angaben in diesem Exposé wurden sorgfältig und so vollständig wie möglich gemacht. Gleichwohl kann das...

Mehr anzeigen

Anbieter der Immobilie

Partner

Vonovia SE-Selbstständiger Vertriebspartner

im Durchschnitt  3,70  Sterne
(bei 81 Bewertungen)

Universitätsstr. 133, 44803 Bochum

user

Herr Oliver Graf

Dein Ansprechpartner

Anbieter-Website Anbieter-Profil Anbieter-Impressum

Online-ID: 2kb9z5g

Referenznummer: 26271-13

Finde Angebote wie dieses

imageimageimage

Hier geht es zu unserem Impressum, den Allgemeinen Geschäftsbedingungen, den Hinweisen zum Datenschutz und nutzungsbasierter Online-Werbung.