
Hechler & Twachtmann Immobilien GmbH
Frau Saskia Wessel
004 ···
Nr. anzeigenPreise & Kosten
Provision für Käufer
provisionsfrei
Lage
Idyllisch und ländlich - so kann man Heiligenrode, Teil der Großgemeinde Stuhr südlich von Bremen gehört, mit Sicherheit bezeichnen.
Für Menschen, die gerne im Grünen wohnen, im Wald spazieren gehen oder einfach nach Feierabend aus der Stadt heraus in die Natur möchten, ist dieser kleine Ort absolut richtig. Mit den...
Die Wohnung
Wohnungslage
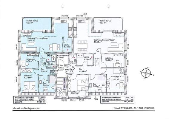
Dachgeschoss
Bezug
ab sofort
Wohnanlage
Energie & Heizung
Warum sehe ich diese Anzeige? – Du siehst diese Anzeige basierend auf Ihrer Navigation auf unserer Website und den Suchkriterien, die du verwendet hast.
Energieausweis: für diesen Gebäudetyp nicht notwendig
Weitere Energiedaten
Heizungsart
Fußbodenheizung, Luft-/Wasser-Wärmepumpe
Details
Objektbeschreibung
In einer ruhigen Wohnsiedlung im Stuhrer Ortsteil Heiligenrode können wir Ihnen ab sofort dieses interessante Neubauprojekt vorstellen!
Das zeitgemäße Wohnhaus mit lediglich vier Wohneinheiten ist auf einem rund 1.162m² großen Grundstück kürzlich entstanden.
Der Bau erfolgte unter Berücksichtigung des aktuellen...
Ausstattung
. KfW-Effizienzhaus 40 EE - klimafreundlicher Neubau
. Wohnbereich mit offener Küche
. Tageslicht-Duschbader mit Handtuchheizkörper
. Gäste-WC
. Innenputz in der Qualitätsstufe Q2
. Fliesenböden in Bad/Gäste-WC/HWR
. Hauswirtschaftsraume mit Trockner- und Waschmaschinenanschlüssen
. großer Balkon mit...
Preisinformation
1 Stellplatz
Weitere Informationen
Sonstiges
Erdgeschoss:
Wohnung 1: Verkauft!
Wohnung 2: Verkauft!
Dachgeschoss:
Wohnung 3: Verkauft!
Wohnung 4: 4 Zimmer | ca. 112 m² | € 399.000,- inkl. Maler- und Bodenbelagsarbeiten
Die Bauleistungsbeschreibung des Bauträgers ist maßgeblich für den Lieferumfang, welche wir Ihnen bei...
Anbieter der Immobilie
Hechler & Twachtmann Immobilien GmbH
Blockener Straße 4, 28816 Stuhr
Online-ID: 2kbc75v
Referenznummer: HC044K
Finde Angebote wie dieses
Hier geht es zu unserem Impressum, den Allgemeinen Geschäftsbedingungen, den Hinweisen zum Datenschutz und nutzungsbasierter Online-Werbung.