
DIBOLIVING GmbH & Co. KG
Herrn Ben Kassin
+49 ···
Nr. anzeigenPreise & Kosten
Kaution
2850
Provision für Mieter
provisionsfrei
Warum sehe ich diese Anzeige? – Du siehst diese Anzeige basierend auf Ihrer Navigation auf unserer Website und den Suchkriterien, die du verwendet hast.
Lage
Die Gewerbefläche befindet sich in der Zeppelinstraße 30, 14471 Potsdam, in einer gut frequentierten und verkehrsgünstigen Lage. Die Zeppelinstraße ist eine der zentralen Verkehrsachsen in Potsdam, die sowohl bei Anwohnern als auch bei Pendlern beliebt ist. In unmittelbarer Nähe befinden sich Geschäfte, Cafés und...
Die Ladenfläche
Kategorie
Laden
Baujahr
1890
Bezug
sofort
Energie & Heizung
Warum sehe ich diese Anzeige? – Du siehst diese Anzeige basierend auf Ihrer Navigation auf unserer Website und den Suchkriterien, die du verwendet hast.
Wärme
Energieausweistyp
Verbrauchsausweis
Gebäudetyp
Nicht-Wohngebäude
Baujahr laut Energieausweis
1890
Gültigkeit
16.10.2023 bis 09.04.2034
Endenergieverbrauch (Wärme)
173,00 kWh/(m²·a)
Details
Objektbeschreibung
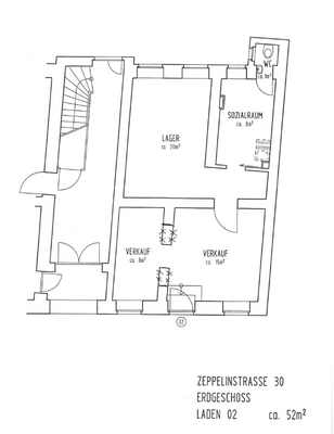
Diese attraktive Gewerbefläche in der Zeppelinstraße 30, 14471 Potsdam eignet sich hervorragend für die Eröffnung eines Ladens oder Büro. Die Räumlichkeiten befinden sich im Erdgeschoss.
Mit einer Fläche von 52,00 m², bietet das Objekt ausreichend Raum für mehrere Arbeitsplätze, einen Empfangsbereich sowie Warteplätze...
Ausstattung
Sanitärbereich und Lagerraum
Weitere Informationen
Sonstiges
Die Einwohnerzahl Potsdams beträgt derzeit ca. 187.000, die Tendenz ist stetig steigend, die Nachfrage nach Wohnraum und Gewerbeflächen aus diesem Grund ebenso.
Die Entwicklung der Stadt Potsdam als Standort für Medien und Wirtschaft ist rasant. Namenhafte Unternehmen aus Wissenschaft und Wirtschaft, wie...
Anbieter der Immobilie

DIBOLIVING GmbH & Co. KG
Zeppelinstr. 123, 14471 Potsdam
Online-ID: 2kbjw5u
Referenznummer: 10417#ztCIOo
Finde Angebote wie dieses
Hier geht es zu unserem Impressum, den Allgemeinen Geschäftsbedingungen, den Hinweisen zum Datenschutz und nutzungsbasierter Online-Werbung.