
Wertkonzepte Immobilien & Hausverwaltung e.K.
Herr Wolfgang Ross
004 ···
Nr. anzeigenPreise & Kosten
Provision für Käufer
3,57% inkl. MwSt.
Lage
Das charmante Reetdachhaus befindet sich in einem ruhigen exponierten Lage von Tönning, der für seine idyllische Lage direkt an der Nordseeküste bekannt ist. Die A-Lage zeichnet sich durch die Nähe zum Hafen und zum historischen Stadt-kern aus, der mit seinen charmanten Fachwerkhäusern und kleinen Geschäften zum Bummeln...
Das Haus
Kategorie
Einfamilienhaus
Baujahr
1964
Energie & Heizung
Warum sehe ich diese Anzeige? – Du siehst diese Anzeige basierend auf Ihrer Navigation auf unserer Website und den Suchkriterien, die du verwendet hast.
Weitere Energiedaten
Energieträger
Öl
Details
Objektbeschreibung
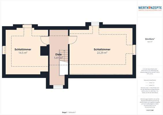
Das charmante Reetdachhaus am Eiderdeich aus dem Jahr 1964 besticht durch seinen klassischen Friesischen-Stil und befindet sich in einem gepflegten Zustand. Das Friesenhaus wurde mal als Ferienhaus genutzt. Die Wohnfläche beträgt großzügige 180 m² auf einer Grundstücksfläche von 1200 m². Das Gebäude verfügt über ein Walmdach...
Preisinformation
2 Stellplätze
1 Garagenstellplatz
Weitere Informationen
Sonstiges
Wir erhalten eine Vielzahl Anfragen zu dieser tollen Immobilie. Haben Sie bitte Verständnis, dass wir über das Exposé hinausgehende Informationen nur solchen Interessenten zur Verfügung stellen, welche vollständige Kontaktdaten angegeben haben und bereits von uns persönlich kontaktiert wurden.
ACHTUNG...
Anbieter der Immobilie
Wertkonzepte Immobilien & Hausverwaltung e.K.
Rosenweg 11, 23611 Bad Schwartau
Online-ID: 2kbmd5l
Referenznummer: 5167WR
Finde Angebote wie dieses
Hier geht es zu unserem Impressum, den Allgemeinen Geschäftsbedingungen, den Hinweisen zum Datenschutz und nutzungsbasierter Online-Werbung.