

Freienstein & Koch Immobilien GmbH
Herr Sören Koch
+49 ···
Nr. anzeigenPreise & Kosten
zzgl. Nebenkosten
Kaution
3 Netto-Kaltmieten
Provision für Mieter
2 Kaltmieten zzgl. 19% Ust. zzgl. MwSt.
Warum sehe ich diese Anzeige? – Du siehst diese Anzeige basierend auf Ihrer Navigation auf unserer Website und den Suchkriterien, die du verwendet hast.
Lage
Der Gewerbekomplex befindet sich im Gewerbegebiet Nord der Stadt Flensburg. Die Bundesautobahn A7 ist innerhalb weniger Minuten erreichbar.
Die Industriefläche
Kategorie
Lagerhalle
Baujahr
2014
Details
Objektbeschreibung
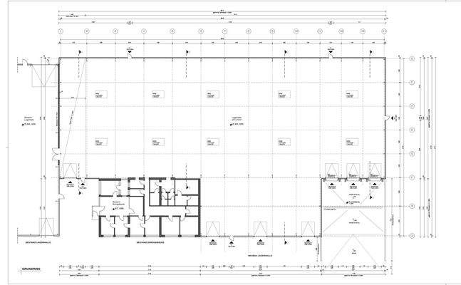
Auf dem ca. 5.000 qm großen Grundstücksteil befinden sich eine moderne Lagerhalle (Halle 1) aus 2014 mit ca. 2.044 qm, eine Lager-/ Produktionshalle (Halle 2) mit ca. 846 qm und ein Büro-/ Sozialtrakt mit ca. 340 qm.
Die beiden Hallen besitzen Oberlichter und Leuchtmittel.
Die Halle 1 bietet eine lichte Höhe von...
Ausstattung
- Oberlichter in beiden Hallen
- Brandmeldeanlage
- alle technischen Anlagen laufend gewartet und geprüft
- Halle 1: 3 Laderampen, 2 überdachte Tore für 7,5 to LKWs und 1 ebenerdiges Rolltor
- Halle 2: Zwei ebenerdige Rolltore
Preisinformation
Nettokaltmiete: 17.900,00 EUR
Weitere Informationen
Sonstiges
- Bei Exposéanfragen bitte die vollständigen Kontaktdaten (Name, Adresse, E-Mail, Tel.Nr.) angeben.
- Mietbeginn Oktober 2026; ggfs. ist ein früherer Mietbeginn nach Absprache möglich.
- Das Betreten des Grundstücks ist ausschließlich gemeinsam mit dem Makler nach vorab erfolgter Terminabstimmung...
Anbieter der Immobilie
Freienstein & Koch Immobilien GmbH
Ziegeleiweg 2A, 25938 Wyk auf Föhr

Online-ID: 2kbn55y
Referenznummer: 2024-129
Finde Angebote wie dieses
Hier geht es zu unserem Impressum, den Allgemeinen Geschäftsbedingungen, den Hinweisen zum Datenschutz und nutzungsbasierter Online-Werbung.