
Immobilien Friedrichsen GmbH & Co. KG
004 ···
Nr. anzeigenPreise & Kosten
Provision für Käufer
3,0 % incl. 19 % MwSt.
Lage
Die Stadt Niebüll, ein staatlich anerkannter Luftkurort mit dem anziehenden Flair einer jungen lebendigen Stadt ist der zentrale Wohnort im nördlichen Nordfriesland mit optimalen Verkehrsanbindungen auf Straße und Schiene. Niebüll ist die touristische Drehscheibe im äußersten Nordwesten der Republik. Von hier aus sind die...
Das Haus
Kategorie
Einfamilienhaus
Baujahr
1980
Bezug
nach Absprache
Energie & Heizung
Warum sehe ich diese Anzeige? – Du siehst diese Anzeige basierend auf Ihrer Navigation auf unserer Website und den Suchkriterien, die du verwendet hast.
Energieausweistyp
Verbrauchsausweis
Gebäudetyp
Wohngebäude
Baujahr laut Energieausweis
1980
Wesentliche Energieträger
OEL
Gültigkeit
bis 13.09.2033
Effizienzklasse
B
Endenergieverbrauch
68,00 kWh/(m²·a)
Weitere Energiedaten
Haustyp
Massivhaus
Energieträger
Öl
Heizungsart
Zentralheizung
Details
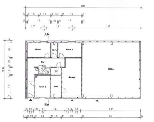
Objektbeschreibung
Dieses ca. 1980 erbaute Wohnhaus mit Nebengebäude befindet sich im Außenbereich der Stadt Niebüll. Das Wohnhaus wurde nach einem Wasserschaden im Jahre 2023/2024 umfangreich modernisiert und modern gestaltet.
Im ca. 119 m² großen und ebenerdigen Wohnbereich stehen Ihnen ein helles Wohn- und Esszimmer, eine großzügige...
Ausstattung
Wohnhaus:
- Fußbodenheizung im gesamten Haus
- Vollbad mit bodengleicher Dusche
- Gäste-WC
- Glasfaseranschluss
Nebengebäude:
- Beheizter Bereich mit vielseitigen Nutzungsmöglichkeiten
- WC / Küche und Duschbad im Nebengebäude vorhanden
- Garage
- Hallenbereich
- großes Carport
Weitere Informationen
Sonstiges
Wir helfen Ihnen gerne bei der Finanzierung der Immobilie!
Unser Service / Ihre Vorteile:
-Erstellung eines individuellen Finanzierungskonzeptes
-Finanzierungsvorprüfung "Was kann ich mir leisten?"
-Einbindung und Prüfung von Fördermöglichkeiten
- Auswahl einer passenden und günstigen...
Anbieter der Immobilie

Immobilien Friedrichsen GmbH & Co. KG
Online-ID: 2kbye5u
Referenznummer: 9311
Finde Angebote wie dieses
Hier geht es zu unserem Impressum, den Allgemeinen Geschäftsbedingungen, den Hinweisen zum Datenschutz und nutzungsbasierter Online-Werbung.