
Wertkonzepte Immobilien & Hausverwaltung e.K.
Herr Tim Pietrzik
004 ···
Nr. anzeigenPreise & Kosten
Provision für Käufer
3,57% inkl. MwSt.
Lage
Das charmante Einfamilienhaus befindet sich in der idyllischen Gemeinde Munkbrarup in Deutschland. Diese Region zeichnet sich durch eine harmonische Verbindung von Natur und ländlichem Charme aus und bietet eine ruhige und erholsame Wohnatmosphäre. Munkbrarup liegt unweit der Ostseeküste, was den Zugang zu malerischen...
Das Haus
Kategorie
Einfamilienhaus
Baujahr
1974
Bezug
ab sofort
Energie & Heizung
Warum sehe ich diese Anzeige? – Du siehst diese Anzeige basierend auf Ihrer Navigation auf unserer Website und den Suchkriterien, die du verwendet hast.
Energieausweistyp
Bedarfsausweis
Gebäudetyp
Wohngebäude
Baujahr laut Energieausweis
2025
Wesentliche Energieträger
LUFTWP
Gültigkeit
bis 12.06.2035
Effizienzklasse
B
Weitere Energiedaten
Energieträger
Elektro
Heizungsart
Fußbodenheizung, Luft-/Wasser-Wärmepumpe, offener Kamin, Zentralheizung
Details
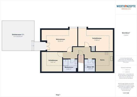
Objektbeschreibung
Willkommen in Ihrem zukünftigen Zuhause in der malerischen Gemeinde Munkbrarup - ein teilmodernisiertes Einfamilienhaus, das komfortables Wohnen mit einer Sackgassenlage verbindet.
Auf einem großzügigen Grundstück von ca. 1.136 m² erstreckt sich diese reizvolle Immobilie mit einer Wohnfläche von ca. 201 m², die Ihnen...
Ausstattung
- Gemütlicher Kamin für behagliche Abende
- Teilweise unterkellert mit praktischem Außeneingang
- Beheizter Wintergarten für ganzjähriges Wohlfühlklima
- Fußbodenheizung in den Bädern und der Küche für extra Komfort
- Großer Garten zur persönlichen Entfaltung und Erholung
- Exklusive Dachterrasse für entspannte...
Preisinformation
2 Stellplätze
2 Garagenstellplätze
Weitere Informationen
Sonstiges
Wir erhalten eine Vielzahl Anfragen zu unseren exklusiven Immobilienangeboten. Haben Sie bitte Verständnis, dass wir über das Exposé hinausgehende Informationen nur solchen Interessenten zur Verfügung stellen, welche vollständige Kontaktdaten angegeben haben und bereits von uns persönlich kontaktiert...
Anbieter der Immobilie
Wertkonzepte Immobilien & Hausverwaltung e.K.
Rosenweg 11, 23611 Bad Schwartau
Online-ID: 2kbzf54
Referenznummer: SL-20004
Finde Angebote wie dieses
Hier geht es zu unserem Impressum, den Allgemeinen Geschäftsbedingungen, den Hinweisen zum Datenschutz und nutzungsbasierter Online-Werbung.