

VON POLL IMMOBILIEN Passau - Mathias Zank
Herr Patrick Preuß
+49 ···
Nr. anzeigenPreise & Kosten
Provision für Käufer
Käuferprovision beträgt 3,57 % (inkl. MwSt.) des beurkundeten Kaufpreises
Lage
Die Immobilie befindet sich in einer ruhigen und naturnahen Wohngegend von Bad Griesbach, einer charmanten Stadt im niederbayerischen Landkreis Passau. Die Lage zeichnet sich durch ihre idyllische Umgebung und die Nähe zu verschiedenen Freizeitmöglichkeiten aus, die sowohl für Familien als auch für Ruhesuchende ideal...
Das Haus
Kategorie
Einfamilienhaus
Baujahr
1981
Energie & Heizung
Warum sehe ich diese Anzeige? – Du siehst diese Anzeige basierend auf Ihrer Navigation auf unserer Website und den Suchkriterien, die du verwendet hast.
Energieausweistyp
Verbrauchsausweis
Gebäudetyp
Wohngebäude
Baujahr laut Energieausweis
1981
Wesentliche Energieträger
OEL
Gültigkeit
bis 08.04.2035
Effizienzklasse
D
Endenergieverbrauch
100,01 kWh/(m²·a)
Weitere Energiedaten
Haustyp
Massivhaus
Energieträger
Öl
Heizungsart
Zentralheizung
Details
Objektbeschreibung
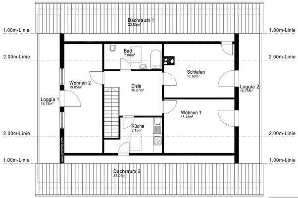
Zum Verkauf steht ein großzügiges Einfamilienhaus, das sich ideal für Familien eignet. Das Objekt verfügt über eine Wohnfläche von ca. 172 m², die ausreichend Platz für individuelle Lebenskonzepte bietet. Das Objekt befindet sich auf einem ca. 1200 m² großen Grundstück und wurde im Jahr 1981 erbaut.
Die Immobilie...
Ausstattung
- großes Grundstück
- Einzelgarage
- neue Böden
- neue Wasserleitungen
- Bad im Erdgeschoss neu gemacht
- Dachboden für zusätzlichen Stauraum
Preisinformation
1 Garagenstellplatz
Weitere Informationen
Sonstiges
Es liegt ein Energieverbrauchsausweis vor.
Dieser ist gültig bis 8.4.2035.
Endenergieverbrauch beträgt 100.01 kwh/(m²*a).
Wesentlicher Energieträger der Heizung ist Öl.
Das Baujahr des Objekts lt. Energieausweis ist 1981.
Die Energieeffizienzklasse ist D.
Stichworte
Anzahl der...
Anbieter der Immobilie
VON POLL IMMOBILIEN Passau - Mathias Zank
Heiliggeistgasse 1, 94032 Passau

Online-ID: 2kc2555
Referenznummer: 25 345 017
Finde Angebote wie dieses
Hier geht es zu unserem Impressum, den Allgemeinen Geschäftsbedingungen, den Hinweisen zum Datenschutz und nutzungsbasierter Online-Werbung.