

Lange Immobilien GmbH
Herr Christian Cestone
004 ···
Nr. anzeigenPreise & Kosten
Provision für Mieter
provisionsfrei
Warum sehe ich diese Anzeige? – Du siehst diese Anzeige basierend auf Ihrer Navigation auf unserer Website und den Suchkriterien, die du verwendet hast.
Lage
Zentrale Lage mit hoher Frequenz - mitten in Coburgs historischer Altstadt
Die Büroflächen befinden sich in den Obergeschossen eines repräsentativen Geschäftshauses im Herzen der Coburger Altstadt, direkt angrenzend an die attraktive Fußgängerzone. Das Gebäude liegt in der erweiterten Fußgängerzone, was sowohl eine hohe...
Büro-/Praxisfläche
Kategorie
Bürofläche
Geschoss
Erdgeschoss
Energie & Heizung
Warum sehe ich diese Anzeige? – Du siehst diese Anzeige basierend auf Ihrer Navigation auf unserer Website und den Suchkriterien, die du verwendet hast.
Weitere Energiedaten
Energieträger
Fernwärme
Details
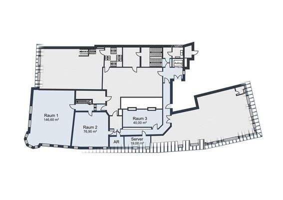
Objektbeschreibung
Die großzügigen, offenen Büroflächen befinden sich in einem sehr guten Zustand und bieten eine umfassende technische Infrastruktur:
- Industrieteppichböden in allen Bereichen
- Moderne Arbeitsplatznetzwerkverkabelung, zentral zusammengeführt im Serverraum
- Umbauoptionen für individuelle Raumaufteilungen oder...
Ausstattung
Sie suchen nach einer vielseitig nutzbaren Gewerbefläche mit viel Raum für Ihre Ideen? Dann könnte dieses Objekt genau das Richtige für Sie sein!
Insgesamt ca. 1.990 m² Bruttogeschossfläche verteilen sich auf zwei offen gestaltete Etagen - ideal als Großraumbüro, für Praxisräume oder individuelle Arbeitsbereiche. Die...
Weitere Informationen
Sonstiges
Ein aktueller Energieausweis ist in Auftrag gegeben und wird spätestens zum Besichtigungstermin vorgelegt.
Stichworte
Anzahl der Gewerbeeinheiten: 1
Anbieter der Immobilie
Lange Immobilien GmbH
Herrngasse 6, 96450 Coburg

Online-ID: 2kca55y
Referenznummer: 9307
Finde Angebote wie dieses
Hier geht es zu unserem Impressum, den Allgemeinen Geschäftsbedingungen, den Hinweisen zum Datenschutz und nutzungsbasierter Online-Werbung.