
CONPLAN Projektentwicklungsgesellschaft mbH & Co. KG
Herr Jörg Clasen
+49 ···
Nr. anzeigenPreise & Kosten
Provision für Käufer
provisionsfrei
Lage
Die Gemeinde Berkenthin im Herzogtum Lauenburg hat rd. 2.000 Einwohner*innen und liegt etwa 20 km südlich von Lübeck und 60 km nordöstlich von Hamburg. Der Ort bietet aufgrund seiner Größe die notwendige alltägliche Grundversorgung und ermöglicht das Leben in einer weitgehend unverbauten Umgebung in unmittelbarer Nähe zu dem...
Das Haus
Baujahr
2027
Bezug
01.09.2027
Energie & Heizung
Warum sehe ich diese Anzeige? – Du siehst diese Anzeige basierend auf Ihrer Navigation auf unserer Website und den Suchkriterien, die du verwendet hast.
Weitere Energiedaten
Haustyp
Holzhaus
Details
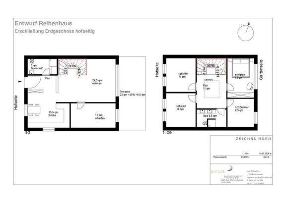
Objektbeschreibung
Das Baugrundstück am "Schredderplatz" in der Friedenstraße liegt am ruhigen südlichen Ortsrand von Berkenthin und grenzt an den Friedhof mit altem Baumbestand, es ist an zwei Seiten von Knicks eingefasst. Geplant ist die Bebauung mit neun kleinen Mehrfamilienhäusern und Reihenhäusern, die 2 bzw. 2,5 Geschosse aufweisen...
Weitere Informationen
Baugemeinschaft
Das Vorhaben wird als Baugemeinschaft realisiert, man ist also nicht Wohnungskäufer, sondern Bauherr:in zusammen mit allen anderen zukünftigen Wohnungseigentümer:innen und hat ein Mitspracherecht bei der Gestaltung der Grundrisse und der Ausstattung der Wohnungen, sowie bei der Planung der...
Anbieter der Immobilie
CONPLAN Projektentwicklungsgesellschaft mbH & Co. KG
Hansestraße 24, 23558 Lübeck
Online-ID: 2kcb45x
Referenznummer: 1024 (1/1024)
Finde Angebote wie dieses
Hier geht es zu unserem Impressum, den Allgemeinen Geschäftsbedingungen, den Hinweisen zum Datenschutz und nutzungsbasierter Online-Werbung.