

Volksbank Immobilien GmbH
Frau Samara Model
015 ···
Nr. anzeigenPreise & Kosten
Provision für Käufer
Bitte beachte, das Angebot kann bei Vertragsabschluss die Zahlung einer Provision beinhalten. Weitere Informationen erhältst Du vom Anbieter.
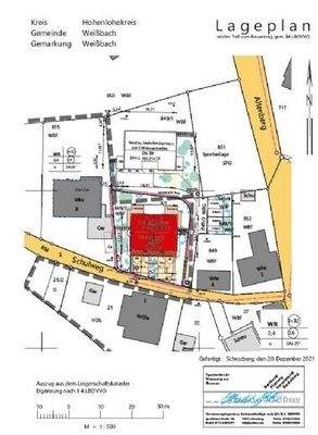
Lage
Die Gemeinde Weißbach befindet sich inmitten der Genießer- und Weltmarktführerregion Hohenlohe, etwa 10 km westlich der Kreisstadt Künzelsau.Aufgrund ihrer zentralen Lage, einem hervorragenden Angebot an Arbeitsplätzen sowie einer guten Infrastruktur wie z.B. Kleinkinderbetreuung, Kindergärten, Grundschule, Bürgerzentrum...
Die Immobilie
Zu diesem Angebot wurden vom Anbieter keine weiteren Daten hinterlegt. Für weitere Informationen bitte den Anbieter kontaktieren.
Nach Informationen fragenDetails
Objektbeschreibung
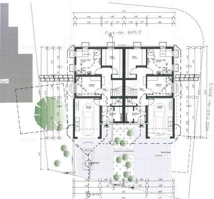
Unser einmaliges Angebot umfasst ein Baugrundstück mit erteilter Baugenehmigung für ein Doppelhaus. Das Grundstück ist voll erschlossen.
Das Gesamtgrundstück weist eine Gesamtgröße von 601 m².
Durch eine Nutzungsänderung kann die erteilte Baugenehmigung individuell und persönlich abgeändert werden. Es besteht kein...
Ausstattung
Pro Haushälfte wurde eine Planung mit einer Wohnfläche von 144 m² zuzüglich 20 m² Nutzfläche erstellt.
Anbieter der Immobilie

Online-ID: 2kcht56
Referenznummer: 56
Finde Angebote wie dieses
Hier geht es zu unserem Impressum, den Allgemeinen Geschäftsbedingungen, den Hinweisen zum Datenschutz und nutzungsbasierter Online-Werbung.