

Martens & Kühl GmbH
Herr Tobias Kühl
041 ···
Nr. anzeigenPreise & Kosten
Provision für Käufer
3% des Kaufpreises inkl. MwSt.
Lage
Die Gemeinde Heidgraben, ursprünglich eine baumlose Moor- und Heidefläche, liegt ca. 18 km nordwestlich von Hamburg am Rande der Marschgebiete. Mit seinen rund 2.800 Einwohnern grenzt es an die Nachbarstädte Uetersen und Tornesch sowie an die Gemeinden Groß- und Klein Nordende. Das Ortszentrum findet sich im Bereich der...
Das Haus
Kategorie
Einfamilienhaus
Baujahr
2006
Bezug
nach Absprache
Energie & Heizung
Warum sehe ich diese Anzeige? – Du siehst diese Anzeige basierend auf Ihrer Navigation auf unserer Website und den Suchkriterien, die du verwendet hast.
Energieausweistyp
Bedarfsausweis
Gebäudetyp
Wohngebäude
Baujahr laut Energieausweis
2006
Wesentliche Energieträger
GAS
Gültigkeit
01.06.2023 bis 01.06.2033
Effizienzklasse
C
Endenergiebedarf
83,00 kWh/(m²·a)
Weitere Energiedaten
Haustyp
Massivhaus
Energieträger
Gas
Heizungsart
offener Kamin, Zentralheizung
Details
Objektbeschreibung
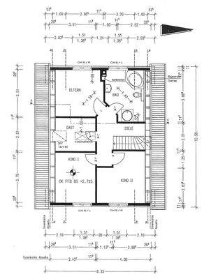
Zum Verkauf steht ein Einfamilienhaus in massiver Bauweise, das im Jahr 2006 errichtet wurde. Die Immobilie befindet sich in ruhiger Wohnlage von Heidgraben und bietet eine Wohnfläche von ca. 126,66 m² auf einem ca. 500 m² großen Grundstück. Mit insgesamt sechs Zimmern eignet sich das Objekt ideal für Familien oder Paare mit...
Ausstattung
- Wohnzimmer mit Kaminofen und Austritt auf die überdachte Terrasse
- Arbeitszimmer
- Große Einbauküche mit Berbel-Dunstabzugshaube , Baujahr ca. 2017
- Hauswirtschaftsraum mit Waschmaschinenanschluss
- Duschbad im Erdgeschoss
- Fußbodenheizung im Erdgeschoss
- Vier weitere Zimmer im Dachgeschoss
-...
Weitere Informationen
Sonstiges
Weitere interessante Angebote finden Sie unter www.martens-kuehl.de.
Stichworte
Distanz zur Grundschule: 1.10, Distanz zum Gymnasium: 3.50, Distanz zum Flughafen: 30.30, Distanz zum Hauptbahnhof: 2.80, Distanz zur Autobahn: 6.00, Distanz zu U-/S-Bahn: 10.80, Distanz zum Bus: 0.15, Distanz vom Zentrum...
Dokumente
Anbieter der Immobilie
Martens & Kühl GmbH
Großer Wulfhagen 25, 25436 Uetersen

Online-ID: 2kcmf5m
Referenznummer: 7325
Finde Angebote wie dieses
Hier geht es zu unserem Impressum, den Allgemeinen Geschäftsbedingungen, den Hinweisen zum Datenschutz und nutzungsbasierter Online-Werbung.