
Antaris Immobilien GmbH
Herrn Felix Reinhardt
+49 ···
Nr. anzeigenPreise & Kosten
Provision für Mieter
provisionsfrei
Warum sehe ich diese Anzeige? – Du siehst diese Anzeige basierend auf Ihrer Navigation auf unserer Website und den Suchkriterien, die du verwendet hast.
Lage
Die Thüringer Stadt Weißensee ist ein attraktiver Standort für ihr Gewerbe und präsentiert sich als aufstrebender Standort für Unternehmen und Gewerbetreibende. Die Stadt bietet eine hervorragende Infrastruktur mit einer optimalen Anbindung über die B 86 an die Autobahn A 38 und A 71.
Gewerbetreibende profitieren von der...
Die Industriefläche
Kategorie
Lagerhalle
Baujahr
1997 - 2004
Energie & Heizung
Warum sehe ich diese Anzeige? – Du siehst diese Anzeige basierend auf Ihrer Navigation auf unserer Website und den Suchkriterien, die du verwendet hast.
Wärme
Strom
Energieausweistyp
Verbrauchsausweis
Gebäudetyp
Nicht-Wohngebäude
Baujahr laut Energieausweis
1997
Wesentliche Energieträger
Öl
Gültigkeit
22.01.2025 bis 22.01.2035
Endenergieverbrauch (Wärme)
126,00 kWh/(m²·a) - Warmwasser enthalten
Endenergieverbrauch (Strom)
20,00 kWh/(m²·a) - Warmwasser enthalten
Details
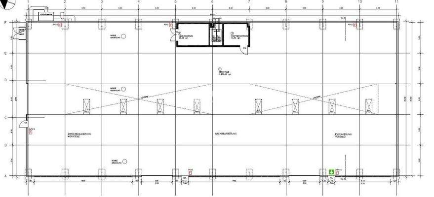
Objektbeschreibung
Zur Vermietung stehen zwei moderne, ebenerdige Hallen auf einem großzügig abgeschlossenen Grund-stück in Worms. Die Hallen bieten optimale Nutzungsmöglichkeiten für Gewerbebetriebe, die auf eine hoch-wertige Infrastruktur und eine gute Erreichbarkeit angewiesen sind.
Die Halle 1 hat eine Größe von ca. 1.550,00 m²...
Ausstattung
beheizbar
LAN-Verbindung
barrierefrei
Schließanlage
Starkstromanschluß
Sektionaltore
komplett umzäunt
beheizbar
LAN-Verbindung
barrierefrei
Schließanlage
Starkstromanschluß
Sektionaltore
komplett umzäunt
Weitere Informationen
Sonstiges
Widerrufsrecht
Sie können Ihre Vertragserklärung innerhalb von 14 Tagen ohne Angaben von Gründen in Textform (z.B. Brief, E-Mail) widerrufen. Die Frist beginnt nach Erhalt dieser Belehrung in Textform, jedoch nicht vor Vertragsabschluss und auch nicht vor Erfüllung unserer Informationspflichten gem. Art. 246 §...
Anbieter der Immobilie
Online-ID: 2kcmh54
Referenznummer: P255021/G4
Finde Angebote wie dieses
Hier geht es zu unserem Impressum, den Allgemeinen Geschäftsbedingungen, den Hinweisen zum Datenschutz und nutzungsbasierter Online-Werbung.