

GÖTZ IMMOBILIEN
Frau Florentina Götz
017 ···
Nr. anzeigenPreise & Kosten
Provision für Käufer
Bitte beachte, das Angebot kann bei Vertragsabschluss die Zahlung einer Provision beinhalten. Weitere Informationen erhältst Du vom Anbieter.
Lage
Wohnen in Reichelsdorf - Stadtnah. Grün. Lebenswert.
Hier verbindet sich naturnahes Wohnen mit urbanem Komfort.
Reichelsdorf im Nürnberger Süden zählt zu den beliebtesten Wohnlagen für Familien, Berufspendler und alle, die Wert auf eine ruhige Nachbarschaft legen - ohne auf städtische Anbindung zu...
Die Wohnung
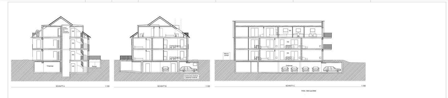
Wohnanlage
Details
Objektbeschreibung
Wohnen in Nürnberg-Reichelsdorf - grün, ruhig und bestens angebunden
Willkommen im Süden Nürnbergs! Reichelsdorf gehört zu den beliebtesten Stadtteilen für alle, die das Leben in der Stadt schätzen - aber zugleich Wert auf Ruhe, Grünflächen und ein familiäres Umfeld legen. Eingebettet in ein gewachsenes Wohnviertel mit...
Ausstattung
Highlights & Ausstattung - Ihre Vorteile auf einen Blick
.KfW-40 EE Bauweise: energieeffizient, förderfähig & zukunftssicher
.Luft-Wasser-Wärmepumpe: umweltfreundliches Heizen mit niedrigen Betriebskosten
.Niedrige Energiekosten dank durchdachter Dämmung und Dreifachverglasung
.Fußbodenheizung mit...
Weitere Informationen
Sonstiges
Ein Projekt mit Zukunft
Ob Sie mit Ihrer Familie ankommen, in die eigenen vier Wände investieren oder einen soliden Grundstein für Ihre Altersvorsorge legen möchten: Beim Wahlbaum 12 vereint modernes, nachhaltiges Bauen mit hoher Lebensqualität - in einem Stadtteil, der verbindet, was heute wichtig ist...
Anbieter der Immobilie
GÖTZ IMMOBILIEN
Lange Str. 15, 74523 Schwäbisch Hall

Online-ID: 2kcmx5q
Referenznummer: OG WHG 05 / 3 Zimmer
Finde Angebote wie dieses
Weitere Immobilien
Hier geht es zu unserem Impressum, den Allgemeinen Geschäftsbedingungen, den Hinweisen zum Datenschutz und nutzungsbasierter Online-Werbung.