
Trummer Immobilien GmbH & Co. KG
Herr Roland Trummer
094 ···
Nr. anzeigenPreise & Kosten
Kaution
43.065,00 Soweit nicht anders erwähnt 3 Monatsmieten
Provision für Mieter
Ortsübliche Provision vom Käufer/Mieter nur im Erfolgsfalle
Warum sehe ich diese Anzeige? – Du siehst diese Anzeige basierend auf Ihrer Navigation auf unserer Website und den Suchkriterien, die du verwendet hast.
Lage
Regensburg - Süd
Büro-/Praxisfläche
Kategorie
Bürofläche
Baujahr
2001
Bezug
sofort
Energie & Heizung
Warum sehe ich diese Anzeige? – Du siehst diese Anzeige basierend auf Ihrer Navigation auf unserer Website und den Suchkriterien, die du verwendet hast.
Energieausweistyp
Verbrauchsausweis
Gebäudetyp
Nicht-Wohngebäude
Endenergieverbrauch (Wärme)
65,00 kWh/(m²·a)
Weitere Energiedaten
Energieträger
Gas
Details
Objektbeschreibung
Kurzbeschreibung
Gerne stehen wir für eine Besichtigung zur Verfügung.
Objekt
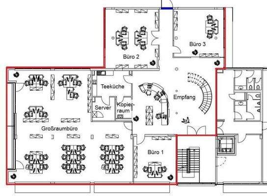
Die Flächen befinden sich in einem Bürogebäude mit exklusiver Ausstattung und hohem technischen Standard in einer Lage mit bester Verkehrsanbindung am südlichen Zentrum von Regensburg. Die Nähe zu den Autobahnen A 93 und A 3 bietet eine...
Ausstattung
Lage: Regensburg - Süd
Mietpreis: EUR 14.355,-
Nebenkosten: EUR 3.589,-
Fläche: ca. 1.305 m²
Zimmeranzahl: 18
Baujahr: 2001
letzte Modernisierung: 2024
Kaution: EUR 43.065,-
Geschoss(e): 1.OG + 2.OG
Bezug: sofort
teilbar ab: ca. 395 m²
Stellplatzpreis: EUR 70,-
Fußweg zum RVV: 3...
Preisinformation
1 Stellplatz, Miete: 70,00 EUR
Nettokaltmiete: 14.355,00 EUR
Weitere Informationen
Sonstiges
Um eine schnelle Bearbeitung zu gewähren benötigen wir Ihre Telefonnummer sowie Ihre komplette Adresse.
Stichworte
Stellplatz vorhanden, Nutzfläche: 1.305,00 m², Bundesland: Bayern, modernisiert: 2024, modernisiert, Distanz zur Autobahn: 2, Distanz zum Bus: .3, Distanz zum Hauptbahnhof: 1, Distanz...
Anbieter der Immobilie

Trummer Immobilien GmbH & Co. KG
Online-ID: 2kcrp5m
Referenznummer: VB 3892
Finde Angebote wie dieses
Hier geht es zu unserem Impressum, den Allgemeinen Geschäftsbedingungen, den Hinweisen zum Datenschutz und nutzungsbasierter Online-Werbung.