
Von Schilcher Immobilienagentur
Frau Pia von Schilcher
017 ···
Nr. anzeigenPreise & Kosten
Provision für Käufer
provisionsfrei
Lage
Die Immobilie befindet sich im begehrten Bremer Stadtteil Schwachhausen, genauer im Wachmannstraßenquartier – einer der gefragtesten Wohnlagen der Stadt. Die Kombination aus ruhiger, grüner Umgebung und zentraler Lage macht diesen Stadtteil besonders attraktiv.
Nur wenige Schritte entfernt liegt der wunderschöne Bremer...
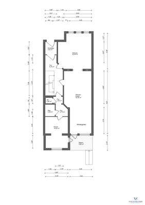
Das Haus
Kategorie
Reihenhaus
Bezug
01.02.2026
Energie & Heizung
Warum sehe ich diese Anzeige? – Du siehst diese Anzeige basierend auf Ihrer Navigation auf unserer Website und den Suchkriterien, die du verwendet hast.
Energieausweistyp
Bedarfsausweis
Gebäudetyp
Wohngebäude
Baujahr laut Energieausweis
1911
Wesentliche Energieträger
Gas
Gültigkeit
26.05.2025 bis 25.05.2035
Effizienzklasse
H
Endenergiebedarf
305,80 kWh/(m²·a)
Weitere Energiedaten
Energieträger
Gas
Details
Objektbeschreibung
Diese ansprechende Immobilie aus dem Jahr 1911 verfügt über sechs gut geschnittene Zimmer, eine sonnige Terrasse, drei Balkone, eine Garage sowie einen nach Südwesten ausgerichteten Garten in besonders ruhiger Lage.
Die Bäder, das Dach und die Elektrik befinden sich in funktionalem Zustand, sollten jedoch modernisiert...
Ausstattung
- Parkett und Dielen
- Drei Bäder
- Hohe Decken
- Wintergarten
- Großer Souterrain
- Einliegerbereich mit Bad und Küche
- Terrasse mit Treppe in den Garten
- Drei Balkone
- Gasheizung aus 2014
- Großzügiger Garten in Südwestlage
- Garage
Weitere Informationen
Wir begleiten Sie gerne kompetent und persönlich – auch bei Ihrer Immobilienfinanzierung. Dank unseres bankenunabhängigen Finanzdienstleisters können wir Ihnen attraktive Sonderkonditionen anbieten. Sprechen Sie uns an.
Anbieter der Immobilie
Von Schilcher Immobilienagentur
Rembrandtstraße 4, 28209 Bremen
Online-ID: 2kcs35b
Finde Angebote wie dieses
Hier geht es zu unserem Impressum, den Allgemeinen Geschäftsbedingungen, den Hinweisen zum Datenschutz und nutzungsbasierter Online-Werbung.