Kagerl Immo-Service GmbH

Vielseitige Gewerbefläche, neu renoviert, zentral, (Einzelhandel, Büro, Praxis usw. möglich)

€ 1.100
Nettomiete zzgl. NK
110 m²
Bürofläche ca.
k.A.
Teilbare Fläche
3
Zimmer

Der Anbieter dieses Objekts hat gegenüber der AVIV Germany GmbH als Betreiber dieses Online-Marktplatzes erklärt, nicht als Unternehmer im Sinne des § 1 KSchG zu handeln. Die im Verbraucherschutzrecht der Union verankerten Verbraucherrechte (insbesondere Informationspflichten und Rücktritts- bzw. Widerrufsrechte) finden auf den Vertrag zwischen dem Anbieter des Objekts und Ihnen (dem Interessenten) keine Anwendung.

Provisionsfrei
Gewerblicher Anbieter

Der Anbieter dieses Objekts hat gegenüber der AVIV Germany GmbH als Betreiber dieses Online-Marktplatzes erklärt, als Unternehmer im Sinne des § 1 KSchG zu handeln.

AdresseStraße nicht freigegeben
84347 Pfarrkirchen 
Auf Karte ansehen

Preise & Kosten

Nettomiete € 1.100 Nebenkosten € 200

Kaution

3300,00

Provision für Mieter

provisionsfrei

Lage

Aufgrund der Lage ist diese Immobilie schon von außen ein echter Hingucker!

Direkt an der hochfrequentierten Kreuzung Ringstraße / Eggenfeldener Straße gelegen, profitieren Sie in bester Altstadtlage von maximaler Sichtbarkeit und enormem täglichem Publikumsverkehr. Unmittelbar vor dem Gebäude stehen zahlreiche...

Mehr anzeigen

Büro-/Praxisfläche

Baujahr

2025

Bezug

ab Sommer 2025 möglich

Energie & Heizung

info

Energieausweis: für diesen Gebäudetyp nicht notwendig

Weitere Energiedaten

Energieträger

Gas

Details

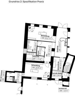
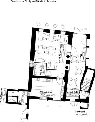
Objektbeschreibung

Objektbeschreibung
Die Räume bestechen durch ihren lichtdurchfluteten Charakter, einen ebenerdigen Zugang und eine stilvolle, hochwertige Sanierung mit nachhaltigen Materialien.

Flexible Nutzungsmöglichkeiten

Dank des intelligenten Grundrisses eignet sich die Fläche ideal für:
- Einzelhandel &...

Mehr anzeigen

Weitere Informationen

Besichtigungstermine
Bei Interesse an einer Besichtigung bitten wir um Terminvereinbarung per Telefon.
KAGERL IMMO-SERVICE GMBH
Tel.: 0170/ 187 16 88

Anbieter der Immobilie

PartnerDiamond Partner

Kagerl Immo-Service GmbH

Miesing 4, 84381 Johanniskirchen

Anbieter-Profil Anbieter-Impressum

Online-ID: 2kd4557

Finde Angebote wie dieses

imageimageimage

Hier geht es zu unserem Impressum, den Allgemeinen Geschäftsbedingungen, den Hinweisen zum Datenschutz und nutzungsbasierter Online-Werbung.