

Geiger Massivbau GmbH | Vertrieb durch Herbst Immobilien
Herr Manuel Herbst
+49 ···
Nr. anzeigenPreise & Kosten
Provision für Käufer
provisionsfrei
Lage
Willkommen in einer der begehrtesten Wohnlagen von Albstadt-Ebingen - ruhig gelegen, umgeben von gepflegten Wohnhäusern, viel Grün und einer angenehmen Nachbarschaft. Hier wohnen Sie erhöht mit Weitblick über die Stadt - in einem Umfeld, das Ruhe und Lebensqualität ideal vereint.
Direkt vor der Haustür beginnen...
Das Haus
Kategorie
Doppelhaushälfte
Baujahr
2025
Energie & Heizung
Warum sehe ich diese Anzeige? – Du siehst diese Anzeige basierend auf Ihrer Navigation auf unserer Website und den Suchkriterien, die du verwendet hast.
Energieausweistyp
Bedarfsausweis
Gebäudetyp
Wohngebäude
Baujahr laut Energieausweis
2025
Wesentliche Energieträger
LUFTWP
Gültigkeit
bis 28.07.2035
Effizienzklasse
A+
Endenergiebedarf
13,90 kWh/(m²·a)
Weitere Energiedaten
Haustyp
KfW 55, Massivhaus
Heizungsart
Fußbodenheizung, Luft-/Wasser-Wärmepumpe, Zentralheizung
Details
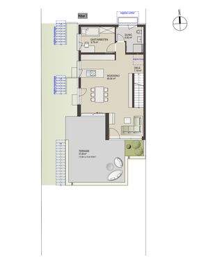
Objektbeschreibung
Modern, hell und mit traumhaftem Fernblick - dieses hochwertige Doppelhaus in begehrter Wohnlage von Albstadt-Ebingen vereint durchdachte Architektur mit zeitgemäßem Wohnkomfort auf drei Ebenen.
Bereits das Untergeschoss bietet ein praktisches Plus: Eine großzügige Doppelgarage mit direktem Zugang ins Haus sorgt für...
Ausstattung
Technische Ausstattung:
- Wärmeversorgung über eine hocheffiziente Luft-Wasser-Wärmepumpe
- Zentrale Warmwasserversorgung mit integriertem Speicher
- Moderne Photovoltaikanlage mit Speicher
- Große Doppelgarage mit direktem Hauszugang
- Zwei zusätzliche Außenstellplätze vor der Garage
- Aufzugsanlage (UG-DG)...
Preisinformation
2 Stellplätze
2 Garagenstellplätze
Weitere Informationen
Sonstiges
Schlüsselfertige Massivbauweise
Der Kaufpreis versteht sich schlüsselfertig, inkl. Doppelgarage, Keller, Außenanlage sowie zwei zusätzlichen Stellplätzen vor dem Haus - ohne Fliesen-, Maler- und Bodenbelagsarbeiten.
Optionaler Innenausbau durch den Bauträger:
Ausführung von Fliesen-, Maler- und...
Anbieter der Immobilie
Geiger Massivbau GmbH | Vertrieb durch Herbst Immobilien
Kornbergstrasse 42, 72459 Albstadt

Online-ID: 2kdv65x
Referenznummer: MH-2025-00036
Finde Angebote wie dieses
Hier geht es zu unserem Impressum, den Allgemeinen Geschäftsbedingungen, den Hinweisen zum Datenschutz und nutzungsbasierter Online-Werbung.