
KMW Immobilien GmbH
Herr Jürgen Heinzl
+43 ···
Nr. anzeigenPreise & Kosten
Provision für Käufer
3% des Kaufpreises zzgl. 20% USt.
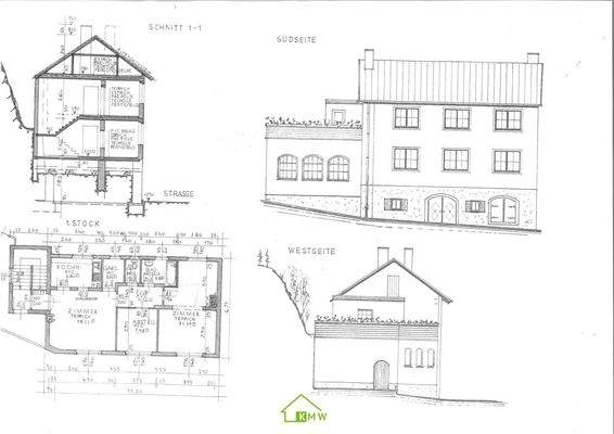
Das Haus
Baujahr
1986
Energie & Heizung
Warum sehe ich diese Anzeige? – Du siehst diese Anzeige basierend auf Ihrer Navigation auf unserer Website und den Suchkriterien, die du verwendet hast.
Heizwärmebedarf (HWB)
166,00 kWh/(m²·a)
Gesamtenergieeffizienz (fGEE)
2,68
Details
Objektbeschreibung
Zum Verkauf gelangt ein geräumiges - zwischen 1977 und 1990 erbautes und ausgebautes - Ein/Mehrfamilienhaus in angenehm ruhiger Lage, umgeben von einigen Weinkellern. Gegenüberliegendes Grundstück - mit Garage und Werkstatt - gehört zum Objekt und befindet sich in Hanglage.
Ein weiteres Grundstück (ehem. Weingarten)...
Preisinformation
1 Garagenstellplatz
Weitere Informationen
Stichworte
Anzahl der Badezimmer: 2, Anzahl der separaten WCs: 3, Anzahl Terrassen: 1, Bundesland: Niederösterreich
Anbieter der Immobilie

KMW Immobilien GmbH
Wiener Straße 94, 3500 KREMS AN DER DONAU
Online-ID: 2ke9d5e
Referenznummer: OBGC2025061608024684956827b16de
Finde Angebote wie dieses
Günstige Immobilienfinanzierung einfach online berechnen
Persönliches Angebot berechnenWarum sehe ich diese Werbung? – Du siehst diese Werbung basierend auf Deiner Navigation auf unserer Website und der von Dir verwendeten Suchkriterien.
Diese Werbung wird bezahlt von durchblicker
Werbung melden
Hier geht es zu unserem Impressum, den Allgemeinen Geschäftsbedingungen, den Hinweisen zum Datenschutz und nutzungsbasierter Online-Werbung.