
fundamentis GmbH
Herr Andreas Wolf
085 ···
Nr. anzeigenPreise & Kosten
Provision für Käufer
provisionsfrei
Lage
Die Doppelhäuser entstehen in einem Neubaugebiet in Neukirchen am Inn, nahe (ca. 10 km) der schönen Dreiflüssestadt Passau.
Fußläufig erreichbar sind Schule, Kindergarten, der Ortskern und ein Supermarkt. Eine Zugverbindung nach Passau und ins Rottal rundet das Infrastruktur-Angebot ab. Mit dem Auto erreichen Sie größere...
Das Haus
Kategorie
Doppelhaushälfte
Baujahr
2026
Bezug
nach Vereinbarung
Energie & Heizung
Warum sehe ich diese Anzeige? – Du siehst diese Anzeige basierend auf Ihrer Navigation auf unserer Website und den Suchkriterien, die du verwendet hast.
Energieausweistyp
Bedarfsausweis
Gebäudetyp
Wohngebäude
Wesentliche Energieträger
Luftwärmepumpe
Gültigkeit
bis 17.03.1935
Endenergiebedarf
14,60 kWh/(m²·a)
Weitere Energiedaten
Heizungsart
Luft-/Wasser-Wärmepumpe
Details
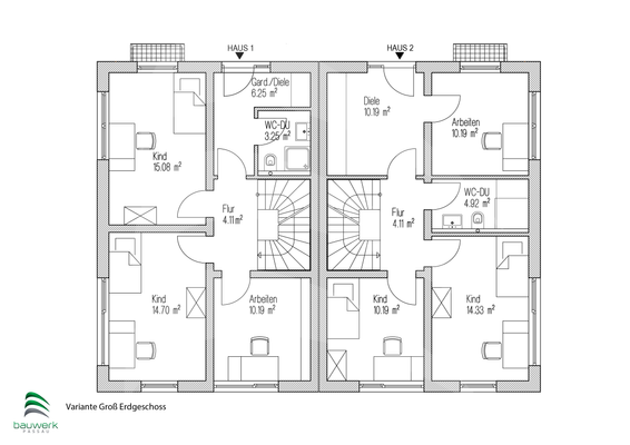
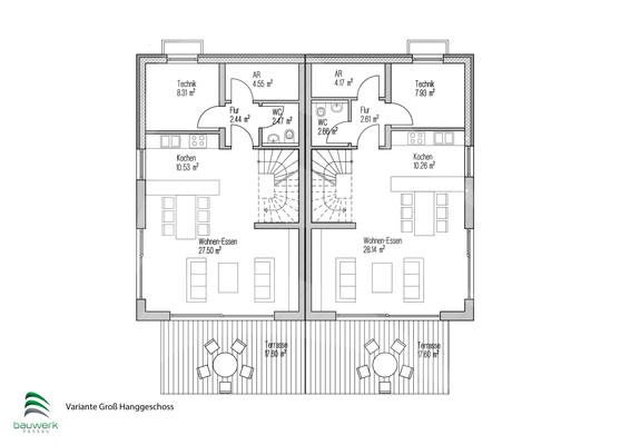
Objektbeschreibung
Sie suchen nicht nur ein Haus, sondern ein Zuhause? Sie wünschen sich viel Platz und Licht? Eine qualitativ hochwertige Ausführung und ein faires Preis-Leistungs-Verhältnis sind wichtig für Sie? Sie möchten einen Baupartner, der Ihre persönlichen Vorstellungen und Wünsche umsetzt? Dann begleiten wir Sie gerne, vom ersten...
Ausstattung
Das können Sie von uns erwarten:
- individuelle Planung und ein Wohnkonzept das zu Ihnen passt
- verlässliche Betreuung und Überwachung vom Spatenstich bis zum Einzug
- anspruchsvolle Architektur zu einem fairen Preis-Leistungs-Verhältnis
- intelligente Energiekonzepte und ökologische Baustoffe
-...
Preisinformation
2 Garagenstellplätze, Kaufpreis je: 20.000,00 EUR
Weitere Informationen
Sonstiges
Weitere Grundstücke in diesem Neubaugebiet sind in unserem Bestand. Auch die individuelle Planung von Einfamilienhäusern ist möglich.
Achtung: Die Bilder dienen als Veranschaulichung und sind von unseren bereits umgesetzten Bauvorhaben.
Stichworte
Garage vorhanden, Nutzfläche: 158,93 m², Anzahl der...
Anbieter der Immobilie
fundamentis GmbH
Alte Straße 88, 94034 Passau
Online-ID: 2kerv5c
Referenznummer: P118_DHH10a_K
Finde Angebote wie dieses
Hier geht es zu unserem Impressum, den Allgemeinen Geschäftsbedingungen, den Hinweisen zum Datenschutz und nutzungsbasierter Online-Werbung.