

Immoraum GmbH
Herr Maximilian Unterreiner
+49 ···
Nr. anzeigenPreise & Kosten
Kaution
3 Bruttomonatsmieten
Provision für Mieter
provisionsfrei
Warum sehe ich diese Anzeige? – Du siehst diese Anzeige basierend auf Ihrer Navigation auf unserer Website und den Suchkriterien, die du verwendet hast.
Lage
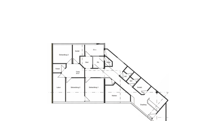
Die Praxisfläche befindet sich im zweiten Obergeschoss eines modernen Gebäudes im Herzen von Plochingen. Das Objekt liegt in der Fußgängerzone, direkt neben dem markanten Hundertwasserhaus, einem bekannten architektonischen Wahrzeichen der Stadt. Die zentrale Lage bietet eine hervorragende Erreichbarkeit sowohl für Fußgänger...
Büro-/Praxisfläche
Kategorie
Praxis
Baujahr
-
Bezug
Nach Vereinbarung
Details
Objektbeschreibung
Die Praxisfläche im 2. Obergeschoss überzeugt durch ihre großzügige und funktionale Raumaufteilung, ideal für medizinische oder therapeutische Zwecke. Die Einheit verfügt über mehrere helle Behandlungsräume, einen freundlichen Empfangsbereich sowie ein separates Wartezimmer. Hochwertige Bodenbeläge und eine moderne...
Ausstattung
Personenaufzug, Sonnenschutz außen, Kunststoffboden, getr. Damen- u. Herren WCs, Teeküche, voll klimatisiert, Alarmanlage, TG-Stellplätze
Weitere Informationen
Stichworte
Sonstiges: Getrennte Damen- und Herren-WCs
Anbieter der Immobilie
Immoraum GmbH
Uhlandstraße 14, 70182 Stuttgart

Online-ID: 2kerx5k
Referenznummer: IRx0553
Finde Angebote wie dieses
Hier geht es zu unserem Impressum, den Allgemeinen Geschäftsbedingungen, den Hinweisen zum Datenschutz und nutzungsbasierter Online-Werbung.