
Rustler Immobilientreuhand GmbH
Frau Chiara Koller
+43 ···
Nr. anzeigenPreise & Kosten
Provision für Käufer
3%
Büro-/Praxisfläche
Kategorie
Bürofläche
Baujahr
1965
Bezug
sofort
Energie & Heizung
Warum sehe ich diese Anzeige? – Du siehst diese Anzeige basierend auf Ihrer Navigation auf unserer Website und den Suchkriterien, die du verwendet hast.
Heizwärmebedarf (HWB)
56,17 kWh/(m²·a)
Gesamtenergieeffizienz (fGEE)
1,26
Weitere Energiedaten
Heizungsart
Zentralheizung
Details
Objektbeschreibung
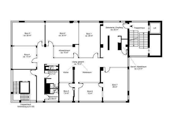
Im renommierten CityTower Linz bieten wir diese moderne Büroräumlichkeit mit einer Gesamtfläche von ca. 290 m² im 9. Obergeschoss an. Ideal für Unternehmen, die Wert auf eine zentrale Lage und erstklassige Infrastruktur legen.
Ihre Vorteile auf einen Blick:
-Großzügige, helle Räume mit flexibler Raumaufteilung...
Preisinformation
2 Stellplätze
2 Garagenstellplätze
Anbieter der Immobilie
Online-ID: 2ketu5s
Referenznummer: 141/83495
Finde Angebote wie dieses
Hier geht es zu unserem Impressum, den Allgemeinen Geschäftsbedingungen, den Hinweisen zum Datenschutz und nutzungsbasierter Online-Werbung.