

Wehrhahn Immobilien e.K.
Herr Jan-Vico Streese
+49 ···
Nr. anzeigenPreise & Kosten
Provision für Käufer
provisionsfrei
Lage
Hoisdorf, ein beschauliches Dorf in unmittelbarer Nähe zu Großhansdorf, liegt mit seinen 3.600 Einwohnern im Einzugsgebiet von Hamburg und im südlichen Teil des Kreises Stormarn in Schleswig-Holstein. Die Nachbargemeinde Großhansdorf sowie die Gemeinde Siek und die Kleinstadt Ahrensburg sind in wenigen Minuten mit dem Auto zu...
Das Haus
Kategorie
Doppelhaushälfte
Baujahr
2026
Bezug
Sommer 2026
Energie & Heizung
Warum sehe ich diese Anzeige? – Du siehst diese Anzeige basierend auf Ihrer Navigation auf unserer Website und den Suchkriterien, die du verwendet hast.
Energieausweistyp
Bedarfsausweis
Gebäudetyp
Wohngebäude
Wesentliche Energieträger
LUFTWP
Gültigkeit
bis 02.03.2033
Effizienzklasse
A+
Endenergiebedarf
18,00 kWh/(m²·a)
Weitere Energiedaten
Haustyp
Massivhaus
Heizungsart
Fußbodenheizung
Details
Objektbeschreibung
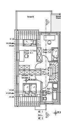
Bei dem hier angebotenen Objekt handelt es sich um eine hochwertige Doppelhaushälfte, welche derzeit in Hoisdorf realisiert wird. Diese Doppelhaushälfte entsteht auf einem Grundstück in zweiter Reihe mit einer Grundstücksfläche von 641 m² zuzüglich anteiliger Gemeinschaftsfläche und wird über ca. 121,98 m² Wohn- und...
Ausstattung
Allgemeines:
Die Haushälfte wird schlüsselfertig übergeben. Sowohl Malerarbeiten als auch Bodenbeläge und der Bau der Außenanlage mit Terrasse sind im Preis enthalten. Nicht im Preis enthalten ist eine Einbauküche. Bei Interesse empfehlen wir Ihnen hierbei gerne passende und zuverlässige Dienstleister.
Als...
Preisinformation
2 Stellplätze
Weitere Informationen
Sonstiges
Als Familienbetrieb mit fast 40 Jahren Erfahrung im Immobilienbereich sind wir Ihr zuverlässiger Partner. Unser engagiertes Team von IHK-geprüften Immobilienkaufleuten steht Ihnen tatkräftig zur Seite und kümmert sich um sämtliche Schritte im Verkaufs- und Vermietungsprozess.
Unser Rundum-Service umfasst...
Dokumente
Anbieter der Immobilie
Wehrhahn Immobilien e.K.
Rathausstraße 1 B, 22941 Bargteheide

Online-ID: 2kf2u5j
Referenznummer: 6360.3
Finde Angebote wie dieses
Hier geht es zu unserem Impressum, den Allgemeinen Geschäftsbedingungen, den Hinweisen zum Datenschutz und nutzungsbasierter Online-Werbung.