

Theisinger Immobilien GmbH
Frau Petra Theisinger
084 ···
Nr. anzeigenPreise & Kosten
Provision für Käufer
4,76 % aus der Kaufsumme inkl. 19 % der gesetzlichen MwSt
Lage
Ingolstadt ist nach München die zweitgrößte Stadt Oberbayerns und nach München, Nürnberg, Augsburg und Regensburg die fünftgrößte Stadt Bayerns. Ingolstadt ist eine kreisfreie Großstadt an der Donau im Freistaat Bayern mit 138.716 Einwohnern. Im Großraum leben rund eine halbe Million Menschen.
Wissenschaft, Kultur und...
Das Haus
Kategorie
Mehrfamilienhaus
Baujahr
1974
Bezug
sofort möglich
Derzeitige Nutzung
vermietet
Energie & Heizung
Warum sehe ich diese Anzeige? – Du siehst diese Anzeige basierend auf Ihrer Navigation auf unserer Website und den Suchkriterien, die du verwendet hast.
Energieausweistyp
Verbrauchsausweis
Gebäudetyp
Wohngebäude
Baujahr laut Energieausweis
1974
Wesentliche Energieträger
GAS
Gültigkeit
bis 02.02.2033
Effizienzklasse
F
Endenergieverbrauch
163,90 kWh/(m²·a)
Weitere Energiedaten
Energieträger
Gas
Heizungsart
Zentralheizung
Details
Objektbeschreibung
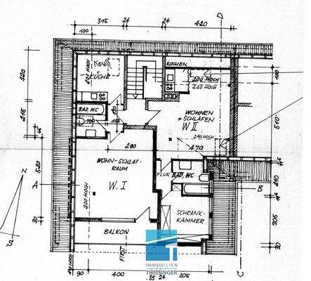
Das Mehrparteienhaus befindet sich direkt in Ingolstadt-Haunwöhr.
Baujahr 1975. Das Dachgeschoß wurde 1979 ausgebaut.
Im Erdgeschoß und Obergeschoß sind die Wohnungen gleich aufgeteilt:
Erdgeschoß 106 m², steht zur freien Verfügung nicht mehr vermietet.
Obergeschoß 106 m²
Jeweils: Eingangsbereich/Diele...
Ausstattung
2016Neue Fenster und Rollos
2010 Neue Gasheizung
2022Treppenhaus gestrichen
2023Dachfenster erneuert
2024Dach gereinigt und überholt
Preisinformation
1 Garagenstellplatz
Weitere Informationen
Sonstiges
Käufer Courtage
Die Maklercourtage beträgt 4,76 % inkl. der gesetzlichen Mehrwertsteuer. Sie ist verdient und fällig bei Abschluss eines notariellen Kaufvertrages und vom Käufer zu zahlen. Grunderwerbssteuer, Notar- und Gerichtskosten sind vom Käufer zu tragen. Im Übrigen gelten unsere Allgemeinen...
Anbieter der Immobilie

Online-ID: 2kfb25t
Referenznummer: 2683
Finde Angebote wie dieses
Hier geht es zu unserem Impressum, den Allgemeinen Geschäftsbedingungen, den Hinweisen zum Datenschutz und nutzungsbasierter Online-Werbung.