

DAHLER Regensburg / Inh. DEPREZ Immobilien
Frau Veerle Deprez
094 ···
Nr. anzeigenDieses Angebot ist Teil des Neubauprojekts
Tradition und Moderne am Donaumarkt
Preise & Kosten
Provision für Käufer
2,38 % inkl. gesetzlicher MwSt. bezogen auf den Kaufpreis inkl. MwSt.
Lage
Dieses charmante Wohn- und Geschäftshaus befindet sich in der idyllischen Gemeinde Hofkirchen, eingebettet in die malerische Landschaft Niederbayerns. Dank seiner strategisch günstigen Lage ist das Anwesen hervorragend an das Verkehrsnetz angebunden. Die nahegelegene Autobahn ist in nur etwa 5,6 Kilometern erreichbar und...
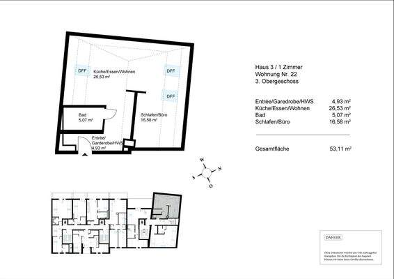
Die Wohnung
Wohnungslage
3. Geschoss (Dachgeschoss)
Wohnanlage
Das Neubauprojekt
Energie & Heizung
Warum sehe ich diese Anzeige? – Du siehst diese Anzeige basierend auf Ihrer Navigation auf unserer Website und den Suchkriterien, die du verwendet hast.
Weitere Energiedaten
Heizungsart
Fußbodenheizung
Details
Objektbeschreibung
Tradition und Moderne verschmelzen im Herzen des Hofkirchener Marktes.
Das Neubauprojekt in Hofkirchen bietet insgesamt 23 Wohnungen in einer Vielzahl von Größen und Ausstattungen, um den vielfältigen Bedürfnissen und Ansprüchen der zukünftigen Bewohner.innen gerecht zu werden.
Alle Wohnungen sind auf einem...
Ausstattung
Die Architektur dieses Ortes greift auf die traditionellen Baustile der Region zurück. Die charakteristischen Giebeldächer, schmalen Hausfronten und sorgfältig ausgewählten Materialien sind Merkmale, die den Gebäuden eine zeitlose Eleganz verleihen. Diese traditionelle Bauweise wird harmonisch mit der Auswahl der Farben und...
Preisinformation
1 Duplex-Stellplatz, Kaufpreis: 22.000,00 EUR
Weitere Informationen
Stichworte
Anzahl der Schlafzimmer: 1, Anzahl der Badezimmer: 1, Distanz zum Kindergarten: 2.38, Distanz zur Grundschule: 3.13, Distanz zur Realschule: 6.70, Distanz zur nächsten Einkaufsmöglichkeit: 8.09, Distanz zum Gymnasium: 12.36, Distanz zum Flughafen: 6.58, Distanz zum Hauptbahnhof: 7.01, Distanz zur Autobahn: 5.64...
Anbieter der Immobilie
DAHLER Regensburg / Inh. DEPREZ Immobilien
Ludwig-Eckert-Str. 5-7, 93049 Regensburg

Online-ID: 2kfcl5m
Referenznummer: DC-RGB-1237_25
Finde Angebote wie dieses
Hier geht es zu unserem Impressum, den Allgemeinen Geschäftsbedingungen, den Hinweisen zum Datenschutz und nutzungsbasierter Online-Werbung.