

Grundstück zum Kauf1950000 €392 €/m²4.971 m² Grundstück
1950000 €
392 €/m²
4.971 m² Grundstück
Großes Entwicklungsgrundstück zur Wohnbebauung direkt am Baumbach in Walheim
Merkmale
- Bezug: Sofort
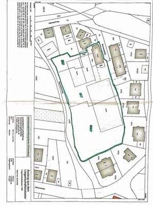
- 4.971 m² Grundstück
- teilweise erschlossen
Grundrisse
Grundrisse
1 / 1
Realisiere Dein Projekt
Bausubstanz und Energie
Möchtest du Details zum Energieverbrauch?

Preisdetails
Kaufpreis
1950000 €
392,28 €/m²
Provision für Käufer
4,76% inlusive der gesetzlichen Mehrwertsteuer, zahlbar bei Vertragsabschluss
Geschätzte Gesamtkosten
2.042.820 €1
Kaufpreis
1.950.000 €
Kaufnebenkosten
92.820 €
2Provision für Käufer (4,76%)
92.820 €
1Der angezeigte Wert ist eine automatisch berechnete Schätzung von immowelt.
2Bei den Angaben handelt es sich um ortsübliche Werte. Individuelle Kosten können abweichen.
Lage

Walheim (74399)
Der Anbieter hat die genaue Adresse nicht freigegeben
Weitere Informationen
Weitere Services
Lust auf eine Besichtigung?
Eine Frage zur Immobilie?
Über den Anbieter
Königstraße 48, 70173 Stuttgart
Partnerschaft

Herr Hüseyin AkcadagDein Kontakt
Online-ID: 258NWUVQG3FK
Referenznummer: 211


Königshaus Immobilien e.K.
Wie zufrieden bist du mit dieser Seite (nicht mit der Immobilie selbst)?

