

Bad Füssinger Immobilien GmbH & Co. Vertriebs- und Verwaltungs KG
Herr Wolfgang Auer
+49 ···
Nr. anzeigenPreise & Kosten
Provision für Käufer
zzgl. 3,57% Käuferprovision
Lage
Das Anwesen befindet sich in Bad Füssing in ruhiger Randlage mit viel Natur und Weitblick.
Bad Füssing mit seinen bekannten Thermen, Einkaufsmöglichkeiten und medizinischer Versorgung ist nur wenige Minuten entfernt. Die Umgebung lädt zu Spaziergängen und Radtouren durch die idyllische niederbayerische Landschaft...
Das Haus
Kategorie
Mehrfamilienhaus
Baujahr
1995
Energie & Heizung
Warum sehe ich diese Anzeige? – Du siehst diese Anzeige basierend auf Ihrer Navigation auf unserer Website und den Suchkriterien, die du verwendet hast.
Energieausweistyp
Verbrauchsausweis
Gebäudetyp
Wohngebäude
Baujahr laut Energieausweis
1995
Wesentliche Energieträger
Öl
Gültigkeit
20.07.2025 bis 19.07.2035
Effizienzklasse
C
Endenergieverbrauch
83,40 kWh/(m²·a)
Weitere Energiedaten
Energieträger
Öl
Details
Objektbeschreibung
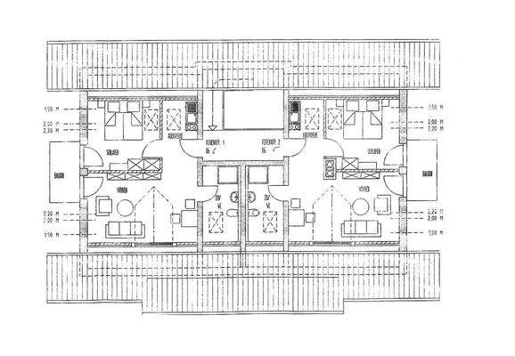
Kapitalanlage in Bad Füssing - Mehrfamilienhaus mit 7 Einheiten
Zum Verkauf steht ein Mehrfamilienhaus in ruhiger Wohnlage von Bad Füssing - ideal als Kapitalanlage oder zur teilweisen Eigennutzung.
Objektdetails:
- Baujahr: 1995
- Grundstück: 3.669 m²
- Gesamtwohnfläche: ca. 366 m² zzgl...
Weitere Informationen
Sonstiges
Das Anwesen ist aktuell als "Wohnen auf dem Bauernhof" genehmigt. Auf Nachfrage beim Landratsamt sowie der Gemeinde wurde bestätigt, dass eine Umnutzung auf reines "Wohnen" grundsätzlich möglich ist. Hierfür ist ein Nutzungsänderungsantrag erforderlich, der gestellt werden kann. Dies eröffnet zusätzliche...
Online-ID: 2kfl45y
Referenznummer: 284 (1/284)
Finde Angebote wie dieses
Hier geht es zu unserem Impressum, den Allgemeinen Geschäftsbedingungen, den Hinweisen zum Datenschutz und nutzungsbasierter Online-Werbung.