

Ohnemus Immobilien
Herr Axel Knoppek
017 ···
Nr. anzeigenPreise & Kosten
Provision für Käufer
Bitte beachte, das Angebot beinhaltet bei Vertragsabschluss die Zahlung einer Provision. Weitere Informationen erhältst Du vom Anbieter.
Lage
Das Grundstück befindet sich in einer ruhigen und familienfreundlichen Wohngegend mit hervorragender Infrastruktur.
- Verkehrsanbindung: Mahlberg liegt verkehrsgünstig nahe der A5, was eine schnelle Anbindung an Offenburg, Freiburg und Karlsruhe ermöglicht.
- Bahnverbindung in Nachbarort
- Einkaufsmöglichkeiten...
Das Haus
Kategorie
Bungalow
Details
Objektbeschreibung
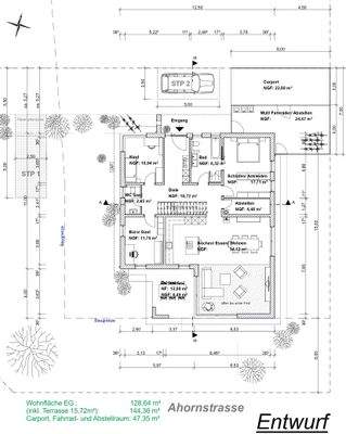
Sie träumen von einem repräsentativen Zuhause mit großzügiger Architektur und maximaler Planungsfreiheit? Auf einem 723m² großen Grundstück in begehrter Lage von Mahlberg bieten wir Ihnen die Möglichkeit, einen exklusiven Bungalow zu realisieren – schlüsselfertig in Massivbauweise, hochwertig ausgestattet und nachhaltig...
Anbieter der Immobilie

Online-ID: 2kfrc5a
Finde Angebote wie dieses
Hier geht es zu unserem Impressum, den Allgemeinen Geschäftsbedingungen, den Hinweisen zum Datenschutz und nutzungsbasierter Online-Werbung.