
City Immobilien GmbH
Herr Norbert Ruf
004 ···
Nr. anzeigenPreise & Kosten
Provision für Käufer
3,57 % inkl. gesetzl. MwSt.
Lage
Mantel ist ein Markt im Oberpfälzer Landkreis Neustadt an der Waldnaab mit ca. 2.800 Einwohnern.
Sie befindet sich im Regierungsbezirk Oberpfalz in Bayern. Mantel ist mit ihrer Anbindung an die A93 und die Staatsstraße 2166 und der Entfernung von etwas über 70 km (Luftlinie) zu Nürnberg nicht nur für Ortsansässige, sondern...
Das Renditeobjekt
Kategorie
Wohn- und Geschäftshaus
Baujahr
1998
Frei ab
vermietet
Energie & Heizung
Warum sehe ich diese Anzeige? – Du siehst diese Anzeige basierend auf Ihrer Navigation auf unserer Website und den Suchkriterien, die du verwendet hast.
Wärme
Energieausweistyp
Verbrauchsausweis
Gebäudetyp
Nicht-Wohngebäude
Baujahr laut Energieausweis
1998
Wesentliche Energieträger
OEL
Gültigkeit
bis 08.05.2028
Endenergieverbrauch (Wärme)
57,80 kWh/(m²·a)
Weitere Energiedaten
Energieträger
Öl
Heizungsart
Zentralheizung
Details
Objektbeschreibung
Das Wohn- und Geschäftshaus im Ortskern von Mantel wurde 1998 in Massivbauweise errichtet. Die kreisfreie Stadt Weiden erreichen sie in 10 Minuten, Amberg in 35 Minuten. Mantel ist sehr gut an den öffentlichen Personennahverkehr angebunden.
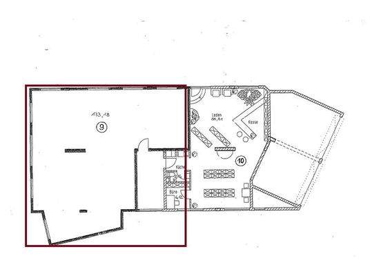
Im Angebot ist eine Gewerbefläche mit einer Größe von ca. 229 m² , die sich auf 2...
Ausstattung
- Baujahr 1998
- Energieeffizienzklasse B
- Keller vorhanden
- Zentralheizung
- Teppichboden in den Büroräumen
- Fliesenboden im Schalterbereich
- Moderne Beleuchtungssysteme
- Gute Raumaufteilung laut Grundriss
- Ausreichend Stellplätze vorhanden
- Großzügige Fensterfronten für natürliches...
Preisinformation
8 Stellplätze
Weitere Informationen
Stichworte
Gesamtfläche: 229,00 m², Bürofläche: 173,00 m²
Anbieter der Immobilie

City Immobilien GmbH
Wörthstraße 9 , 92637 Weiden
Online-ID: 2kfre56
Referenznummer: 3425
Finde Angebote wie dieses
Hier geht es zu unserem Impressum, den Allgemeinen Geschäftsbedingungen, den Hinweisen zum Datenschutz und nutzungsbasierter Online-Werbung.