
Ranck-Wellingerhoff Immobilien
Herr Stefan Kraske
004 ···
Nr. anzeigenPreise & Kosten
Provision für Käufer
3,57% inkl. MwSt.
Lage
Die Feldstraße in Wyk auf Föhr liegt in einer zentralen und dennoch ruhigen Wohngegend. Die Nähe zum Stadtkern ermöglicht es, Geschäfte, Restaurants und Cafés bequem zu Fuß zu erreichen. Zudem ist der beliebte Südstrand nur wenige Gehminuten entfernt, was die Lage besonders attraktiv für Badegäste macht. Durch die...
Das Haus
Kategorie
Einfamilienhaus
Baujahr
1966
Energie & Heizung
Warum sehe ich diese Anzeige? – Du siehst diese Anzeige basierend auf Ihrer Navigation auf unserer Website und den Suchkriterien, die du verwendet hast.
Energieausweistyp
Bedarfsausweis
Gebäudetyp
Wohngebäude
Baujahr laut Energieausweis
1966
Wesentliche Energieträger
GAS
Gültigkeit
bis 22.06.2025
Effizienzklasse
G
Endenergiebedarf
211,00 kWh/(m²·a)
Weitere Energiedaten
Energieträger
Gas
Heizungsart
offener Kamin, Zentralheizung
Details
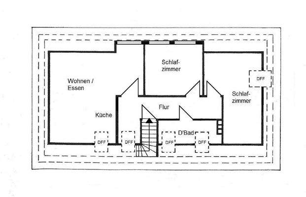
Objektbeschreibung
. Einfamilienhaus mit sep. Einliegerwohnung
. Gesamtfläche ca. 160 m²
. Wohnfläche ca. 140 m²
. Zimmer: 7
. Schlafzimmer: 4
. Badezimmer: 2
. Baujahr 1966 / Sanierungen zwischen 2013-2021, u.a. Dach mit Veluxfenster, Kaminofen, Küchen, Carport, Vollbad, Eingangstür
. Grundstücksgröße ca. 623 m²
...
Preisinformation
1 Carportplatz
2 Stellplätze
Weitere Informationen
Sonstiges
Der Makler-Vertrag mit uns kommt durch die Beauftragung der Maklertätigkeit in Textform (z.B. E-Mail mit Bestätigung der gewollten Inanspruchnahme) zustande. Die Courtage in Höhe von 3,57% des Kaufpreises inkl. MwSt. ist bei notariellem Vertragsabschluss verdient und fällig. Die Höhe der Bruttocourtage unterliegt...
Anbieter der Immobilie
Ranck-Wellingerhoff Immobilien
Große Straße 31, 25938 Wyk auf Föhr
Online-ID: 2kftj5r
Referenznummer: RWI-Föhr-246
Finde Angebote wie dieses
Hier geht es zu unserem Impressum, den Allgemeinen Geschäftsbedingungen, den Hinweisen zum Datenschutz und nutzungsbasierter Online-Werbung.