

SL Immobilien GbR
Frau und Herr Beate & Klaus-Peter Lott
091 ···
Nr. anzeigenPreise & Kosten
Provision für Käufer
3 % zuzüglich gesetzlicher MwSt. derzeit 20%
Lage
Goldegg am See befindet sich im Pongau, einem Bezirk des Salzburger Landes. Es liegt auf einem Hochplateau oberhalb des Salzachtals und ist von Bergen und Wäldern umgeben. Goldegg am See bietet eine Vielzahl von Freizeitaktivitäten, darunter Wandern, Radfahren, Golfen, Tennis, Beachvolleyball und...
Gastronomie/Hotel
Kategorie
Hotel
Baujahr
2027 + Bestand
Bezug
Sommer 2027
Geschosse
4 Geschosse
Details
Objektbeschreibung
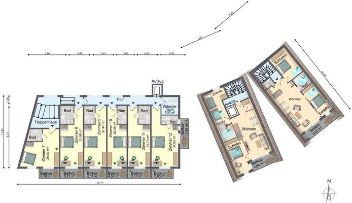
Die Hotelanlage besteht aus 2 Gebäudeteilen, einem Neubau und einem kernsanierten Bestandsgebäude.
Im Erdgeschoss des viergeschossigen Bestandsgebäudes befinden sich der Gastro-Bereich samt Küche und Nebenräumen. Im 1., 2. und 3. Stockwerk sind jeweils 6 Appartements mit einer Fläche von ca. 30 - 39 m² vorhanden.
Der...
Ausstattung
Schlüsselfertige Erstellung entsprechend Baubeschreibung.
Preisinformation
€ 9.400.000,00 zuzüglich gesetzlicher Mehrwertsteuer von derzeit 20%.
Weitere Informationen
Maklerprovision
Im Erfolgsfalle beträgt unsere Provision 3 % zuzüglich der gesetzlichen Mehrwertsteuer, derzeit 20 %MwSt. (= 3,6 %) von der Kaufsumme und ist mit der notariellen Beurkundung des Kaufvertrages zur Zahlung fällig.
Beratung und Verkauf
Die Firma SL Immobilien GbR ist exklusiv mit der Vermarktung...
Anbieter der Immobilie
SL Immobilien GbR
Brunnenweg 14, 92353 Postbauer-Heng

Online-ID: 2kfup5t
Referenznummer: 2453
Finde Angebote wie dieses
Hier geht es zu unserem Impressum, den Allgemeinen Geschäftsbedingungen, den Hinweisen zum Datenschutz und nutzungsbasierter Online-Werbung.