
LEG Wohnen NRW GmbH
Frau Leonie Charlier
02 ···
Nr. anzeigenPreise & Kosten
nicht in Warmmiete enthalten
Kaution
1.977,00
Provision für Mieter
Bitte beachte, das Angebot kann bei Vertragsabschluss die Zahlung einer Provision beinhalten. Weitere Informationen erhältst Du vom Anbieter.
Warum sehe ich diese Anzeige? – Du siehst diese Anzeige basierend auf Ihrer Navigation auf unserer Website und den Suchkriterien, die du verwendet hast.
Lage
Mit den öffentlichen Verkehrsmitteln erreichen Sie Frechen in ca. 30 (Buslinie 975) und Köln in ca. 40 (Buslinie 963, S12) Minuten. Innerhalb von 5 Fahrminuten erreichen Sie mit dem Auto die Anschlussstelle Bergheim der A61, von der aus Sie schnell die A4 und damit Frechen und Köln erreichen.
Büro-/Praxisfläche
Kategorie
Bürofläche
Baujahr
1977
Bezug
nach Vereinbarung
Geschoss
Erdgeschoss
Energie & Heizung
Warum sehe ich diese Anzeige? – Du siehst diese Anzeige basierend auf Ihrer Navigation auf unserer Website und den Suchkriterien, die du verwendet hast.
Energieausweistyp
Verbrauchsausweis
Gebäudetyp
Wohngebäude
Baujahr laut Energieausweis
1977
Gültigkeit
seit 01.01.2014
Endenergieverbrauch
100,10 kWh/(m²·a) - Warmwasser enthalten
Weitere Energiedaten
Energieträger
Fernwärme
Details
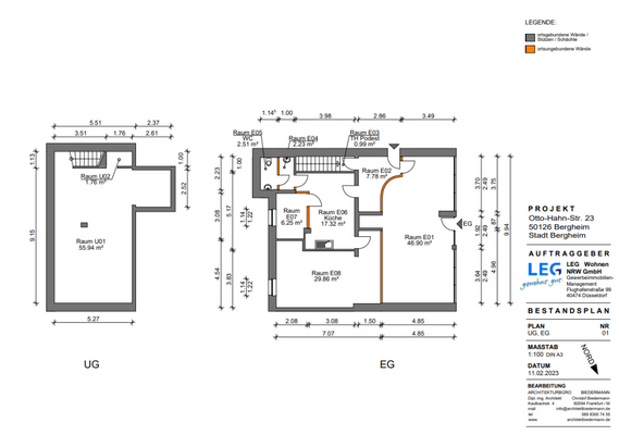
Objektbeschreibung
Die genannte Gewerbeeinheit befindet sich einer Reihe von Gewerbeeinheiten mit verschiedenen Nutzungszwecken. Die 1977 gebauten Gewerbeeinheiten befinden sich in Mitte einer ruhigen und gepflegten Wohnanlage am Rande des Zentrums von Bergheim Zieverich.
Beim Eintreten in die Einheit gelangt man direkt in die Hauptfläche...
Ausstattung
Die Gewerbefläche ist wie folgt ausgestattet:
- ca.115 qm Gewerbefläche im EG
- ca. 55 qm Lagerfläche im Keller
- Parkmöglichkeiten unmittelbar vor dem Haus
Preisinformation
Nettokaltmiete: 659,00 EUR
Weitere Informationen
Sonstiges
Sie wünschen einen Besichtigungstermin? Wir freuen uns auf Sie!
Wir von der LEG sind Ihre kompetenten Vermieter mit vielen Jahrzehnten Erfahrung in der Wohnungswirtschaft.
Gerne beraten wir Sie bei der Kaution als Ratenzahlung. Zudem können Sie über plusForta eine Kautionsbürgschaft hinterlegen...
Anbieter der Immobilie

LEG Wohnen NRW GmbH
Flughafenstraße 99, 40474 Düsseldorf
Online-ID: 2kfxw59
Referenznummer: 1597-40225-M
Finde Angebote wie dieses
Hier geht es zu unserem Impressum, den Allgemeinen Geschäftsbedingungen, den Hinweisen zum Datenschutz und nutzungsbasierter Online-Werbung.