

Valdorf I Immobilienservice-OWL.com
Frau Anja Valdorf
057 ···
Nr. anzeigenPreise & Kosten
Provision für Käufer
Im Falle des Erwerbs dieses Objektes berechnen wir Ihnen für den Nachweis oder die Vermittlung
eine Maklergebühr in Höhe von 3,57%, einschl. gesetzl. MwSt., vom vereinbarten Kaufpreis. Mit dem Eigentümer wurde ein gleichlautender Vertrag geschlossen.
Abschreibung/Anlage
als Kapitalanlage geeignet
Lage
Sehr zentrale und gute Lage in unmittelbarer Nähe zum Sielpark gelegen und gleichzeitig in der ein paar Schritte von "Werste Dorfmitte", fußläufig direkt zur Werre und den Naherholungsgebieten und Werreauen, die Einkaufsmöglichkeiten wie WEZ, Discounter (Aldi, Lidl), Diverse Schulen (Grundschule und weiterfürhende Schulen)...
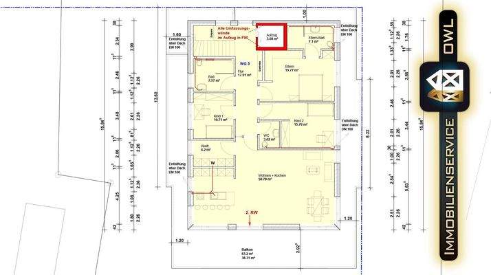
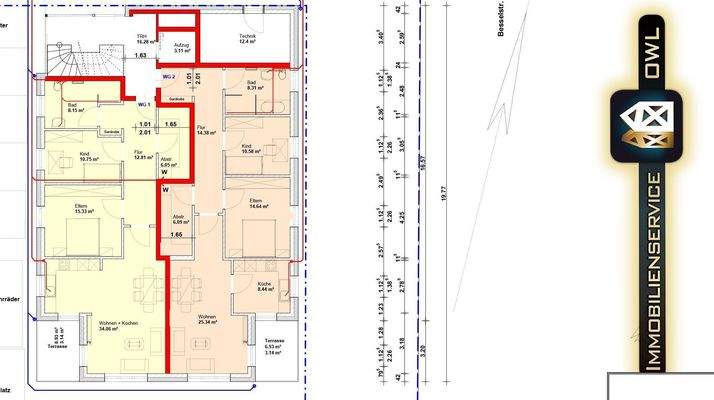
Die Wohnung
Kategorie
Penthouse
Wohnungslage
Erdgeschoss
Bezug
Ende 2025
Derzeitige Nutzung
frei
Wohnanlage
Energie & Heizung
Warum sehe ich diese Anzeige? – Du siehst diese Anzeige basierend auf Ihrer Navigation auf unserer Website und den Suchkriterien, die du verwendet hast.
Energieausweistyp
Bedarfsausweis
Gebäudetyp
Wohngebäude
Baujahr laut Energieausweis
2025
Wesentliche Energieträger
Strom
Effizienzklasse
A
Endenergiebedarf
22,30 kWh/(m²·a)
Weitere Energiedaten
Haustyp
KfW 40
Heizungsart
Fußbodenheizung, Luft-/Wasser-Wärmepumpe
Details
Objektbeschreibung
Exklusives Neubau-Mehrfamilienhaus in Bad Oeynhausen-Werste
Hochwertige Bauqualität – moderne Architektur – sehr schöne Wohnlage Dorfmitte Nähe Sielpark...
.................................................
In zentraler, präsenter und zugleich ruhiger Lage von Bad Oeynhausen-Werste, nur wenige Meter von der...
Ausstattung
Die exklusive Ausstattung:
großformatige Fensterelemente mit Ausrichtung nach Süden und direkten Zugang zur weitläufigen Terrasse. Outdoor-Jalousien sorgen für angenehmen Schatten und Privatsphäre. Glatte Putzwände hell gestrichen, Parkett oder Grossformatfliesen, sowie Design Vinyl, glatte moderne Türen mit schicken...
Weitere Informationen
Sonstiges
Früher hieß es nur alleine Lage, Lage, Lage, hier stimmt die Lage - aber vor allem der Energieverbrauch!
Das Haus wird in Effizienz 40 gebaut!
Viele weitere Infos unter www.owl.immo
____________
Die Ausstattung im Überblick:
- Premium Innentüren
- Hochwertige 3fach verglaste...
Anbieter der Immobilie

Online-ID: 2kfzz55
Referenznummer: 0205_25_Penthouse
Finde Angebote wie dieses
Hier geht es zu unserem Impressum, den Allgemeinen Geschäftsbedingungen, den Hinweisen zum Datenschutz und nutzungsbasierter Online-Werbung.