

Neufeld Immobilien GmbH
Frau Hanna Cornelius
071 ···
Nr. anzeigenPreise & Kosten
Kaution
3MKM
Warum sehe ich diese Anzeige? – Du siehst diese Anzeige basierend auf Ihrer Navigation auf unserer Website und den Suchkriterien, die du verwendet hast.
Lage
Eingebettet in sanfte Weinberge, malerische Wälder und weitläufige Wiesen liegt die charmante Gemeinde Oedheim am idyllischen Unterlauf des Kochers - im landschaftlich reizvollen Norden des Landkreises Heilbronn. Gemeinsam mit dem Ortsteil Degmarn vereint Oedheim die Ruhe der Natur mit den Annehmlichkeiten einer modernen...
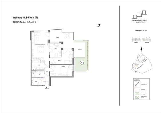
Die Wohnung
Wohnungslage
2. Geschoss (Erdgeschoss)
Bezug
sofort
Wohnanlage
Energie & Heizung
Warum sehe ich diese Anzeige? – Du siehst diese Anzeige basierend auf Ihrer Navigation auf unserer Website und den Suchkriterien, die du verwendet hast.
Weitere Energiedaten
Heizungsart
Fußbodenheizung, Luft-/Wasser-Wärmepumpe
Details
Objektbeschreibung
Willkommen bei Kocher Living Two - dem zweiten Bauabschnitt unseres erfolgreichen Neubauprojekts im Herzen von Oedheim. Das Konzept verbindet modernes Wohnen mit der naturnahen Lage direkt am Kocher und in unmittelbarer Nachbarschaft zum historischen Schloss.
Hier entsteht ein stilvolles Wohnensemble für Menschen, die...
Ausstattung
- Effizienzhaus KfW 40 Plus
- Deckenhöhe von ca. 2,58m
- Deckenhöhe im DG von ca. 2,84m
- Überhohe weiße Türen ca. 2,10m
- Terrassen/Balkone/Dachterrassen mit Natursteinbelag
- Großformatige Fliesen (60cm x 60cm)
- Bodentiefe Fenster (3-fach verglast)
- Echtholzparkettboden in Wohn- und Schlafräumen...
Preisinformation
2 Tiefgaragenstellplätze, Miete je: 85,00 EUR
Weitere Informationen
Sonstiges
Die hochwertige Einbauküche inklusive Elektroeinbaugeräten wird zzgl. mit 110€ in die Kaltmiete einberechnet.
Bei Bedarf können gerne mehrere Tiefgaragenstellplätze oder Außenstellplätze angemietet werden. Diese belaufen sich, je nach Kategorie und Verfügbarkeit, auf 40 - 85€ pro Stellplatz und...
Anbieter der Immobilie

Online-ID: 2kg2857
Referenznummer: Deg_15.3
Finde Angebote wie dieses
Hier geht es zu unserem Impressum, den Allgemeinen Geschäftsbedingungen, den Hinweisen zum Datenschutz und nutzungsbasierter Online-Werbung.