
SAB Investment
Sascha Brückmann
049 ···
Nr. anzeigenPreise & Kosten
Provision für Käufer
3,57% inkl. MwSt.
Lage
Die Schwarmstadt Oldenburg zählt zu den beliebtesten Wahl-Heimatsorten Niedersachsens. Die Universitätsstadt zählt nunmehr rund 175.000 Einwohner und liegt im Nordwesten Deutschlands. Einen dynamischen Wandel erfährt die Stadt durch Startup-Unternehmen, starkem Zuwachs an Studenten und Einwohnern, sowie der daraus...
Die Wohnung
Bezug
sofort
Wohnanlage
Energie & Heizung
Warum sehe ich diese Anzeige? – Du siehst diese Anzeige basierend auf Ihrer Navigation auf unserer Website und den Suchkriterien, die du verwendet hast.
Weitere Energiedaten
Energieträger
Elektro
Details
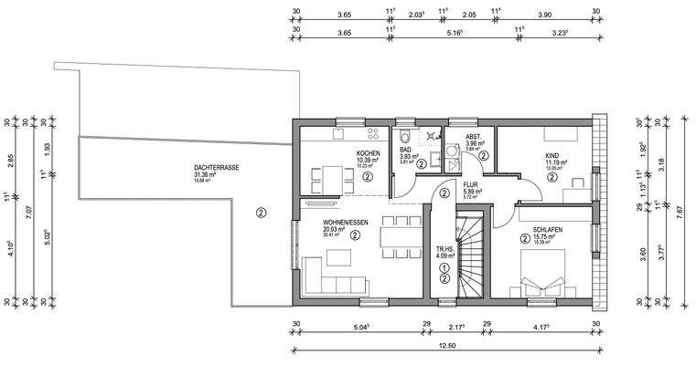
Objektbeschreibung
Neubauqualität: Erdgeschosswohnung am See (Tonkuhle) im KFW 55 Effizienzhaus
In diesem modernen KFW 55 Effizienzhaus in Massivbauweise am See befindet sich eine im Bau befindliche stilvolle Wohneinheit mit Fertigstellung im 4. Quartal 2025. Um eine Neubaubeschaffenheit zu generieren, wird die Bestandsimmobilie mit...
Ausstattung
. KFW 55-Effizienshaus Bauweise
. Dacheindeckung mit hochwertigen Tondachziegeln
. dreifach verglaste Kunststofffenster
. Rollläden vor allen Fenstern
. Fußbodenheizung in allen Räumen
. Satelliten-TV Anlage
. Klingelanlage
. Wärmepumpe (Luft-/ Wasserwärmepumpe)
. Dachdämmung (Mineralwolle)
...
Preisinformation
1 Stellplatz
Weitere Informationen
Stichworte
Stellplatz vorhanden, Anzahl der Schlafzimmer: 2, Anzahl der Badezimmer: 1, Stadtzentrumslage, modernisiert: 2025
Anbieter der Immobilie
SAB Investment
Hauptstr. 126, 26639 Wiesmoor
Online-ID: 2kgag55
Referenznummer: 200099#BicHF
Finde Angebote wie dieses
Hier geht es zu unserem Impressum, den Allgemeinen Geschäftsbedingungen, den Hinweisen zum Datenschutz und nutzungsbasierter Online-Werbung.