
FRAU SCHRÖDL. Immobilien & Beratungen
Frau Andrea Schrödl
004 ···
Nr. anzeigenPreise & Kosten
Provision für Käufer
3,57% Käuferprovision vom notariell beurkundeten Kaufpreis
Lage
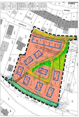
Das reizvolle Grundstück befindet sich in der idyllischen Gemeinde Tengen, eingebettet in die malerische Landschaft des Hegaus in Deutschland. Diese Wohnlage bietet eine perfekte Kombination aus ruhiger Naturnähe und guter Anbindung an die Annehmlichkeiten des täglichen Lebens. Die Region rund um Tengen ist bekannt für ihre...
Das Grundstück
Details
Objektbeschreibung
Im attraktiven Neubaugebiet "Im Amtsgarten" in Tengen wird hier eine Fläche für Bauträger oder Investoren angeboten.
Rechtskräftiger Bebauungsplan liegt vor. Hier haben Sie die Möglichkeit, modernes und familienfreundliches Wohnen nach Ihren Vorstellungen zu verwirklichen - mit viel Raum für Lebensqualität in einem...
Ausstattung
hre Vorteile auf einen Blick:
- Ruhige Lage in naturnaher Umgebung
- Flexible Planung durch großzügige Bebaubarkeit
- Energieeffiziente Zukunft durch Fernwärme und Glasfaseranschluss
- Familienfreundliches Umfeld mit hoher Lebensqualität
Erschließung und Versorgung:
Hausanschlüsse für Wasser und...
Weitere Informationen
Sonstiges
Wesentlicher Energieträger der Heizung ist Fernwärme.
Abweichungen, Irrtümer und Änderungen sind vorbehalten. Alle Angaben ohne Gewähr! Eine Haftung ist ausgeschlossen. Obige Daten beruhen auf Angaben des Verkäufers, für die Richtigkeit bzw. für die Vollständigkeit wird keine Gewähr übernommen. Beim Erwerb...
Anbieter der Immobilie
Online-ID: 2kgaq5j
Referenznummer: 25-1149 H1
Finde Angebote wie dieses
Hier geht es zu unserem Impressum, den Allgemeinen Geschäftsbedingungen, den Hinweisen zum Datenschutz und nutzungsbasierter Online-Werbung.