
Antaris Immobilien GmbH
Frau Nadja Schilg
+49 ···
Nr. anzeigenPreise & Kosten
Provision für Mieter
provisionsfrei
Warum sehe ich diese Anzeige? – Du siehst diese Anzeige basierend auf Ihrer Navigation auf unserer Website und den Suchkriterien, die du verwendet hast.
Lage
Erfurt, die Landeshauptstadt des Freistaates Thüringen, mit ca. 210.000 Einwohnern, zählt zu den größten Städten Mitteldeutschlands. Sie besitzt eine reiche Historie und eine Altstadt, die ihresgleichen sucht. Der Stadtkern birgt mannigfaltige Sehenswürdigkeiten in sich. Verkehrstechnisch ist Erfurt sehr gut angebunden. Die...
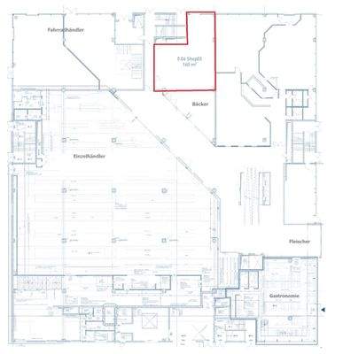
Die Ladenfläche
Baujahr
2001
Erdgeschoss
Energie & Heizung
Warum sehe ich diese Anzeige? – Du siehst diese Anzeige basierend auf Ihrer Navigation auf unserer Website und den Suchkriterien, die du verwendet hast.
Wärme
Strom
Energieausweistyp
Verbrauchsausweis
Gebäudetyp
Nicht-Wohngebäude
Baujahr laut Energieausweis
2001
Wesentliche Energieträger
Fernwärme
Gültigkeit
31.03.2023 bis 31.03.2033
Endenergieverbrauch (Wärme)
94,70 kWh/(m²·a) - Warmwasser enthalten
Endenergieverbrauch (Strom)
51,30 kWh/(m²·a) - Warmwasser enthalten
Details
Objektbeschreibung
Die beeindruckende Immobilie zeichnet sich durch eine zeitgemäße, moderne Architektur aus. Das im Obergeschoss befindliche Kino, der im Erdgeschoss befindliche Lebensmitteleinzelhändler, der Fahrradhändler, die immer ausgebuchte Gastronomie, ein Bäcker und zukünftig auch ein Fleischer locken täglich zahlreiche Besucher...
Ausstattung
- hochfrequentierte Lage in der Innenstadt
- Erstbezug nach Sanierung
- direkter Zugang vom Center zur Tiefgarage
- Kundenparkplätze auf dem objekteigenen Parkplatz
- hochfrequentierte Lage in der Innenstadt
- Erstbezug nach Sanierung
- direkter Zugang vom Center zur Tiefgarage
- Kundenparkplätze auf dem...
Weitere Informationen
Sonstiges
Widerrufsrecht
Sie können Ihre Vertragserklärung innerhalb von 14 Tagen ohne Angaben von Gründen in Textform (z.B. Brief, E-Mail) widerrufen. Die Frist beginnt nach Erhalt dieser Belehrung in Textform, jedoch nicht vor Vertragsabschluss und auch nicht vor Erfüllung unserer Informationspflichten gem. Art. 246 §...
Anbieter der Immobilie
Online-ID: 2kgbx5y
Referenznummer: P253001/G1/Eh1
Finde Angebote wie dieses
Hier geht es zu unserem Impressum, den Allgemeinen Geschäftsbedingungen, den Hinweisen zum Datenschutz und nutzungsbasierter Online-Werbung.