
Osnabrücker Immobilienkontor Klinghagen & Krausewitz eGbR
Frau Hilke Krausewitz
004 ···
Nr. anzeigenPreise & Kosten
Provision für Käufer
2,975 % vom Kaufpreis inkl. 19% MwSt. inkl. MwSt.
Lage
Natrup- Hagen ist ein Ortsteil der Gemeinde Hagen am Teutoburger Wald (Landkreis Osnabrück) im Osnabrücker Land in Niedersachsen.
Die Region ist ländlich und durch die Ausläufer des Teutoburger Waldes geprägt.
Die kleine Wohnanlage entsteht in einer ruhigen und gepflegten Siedlung, geprägt von Einfamilienhäusern...
Die Wohnung
Wohnungslage
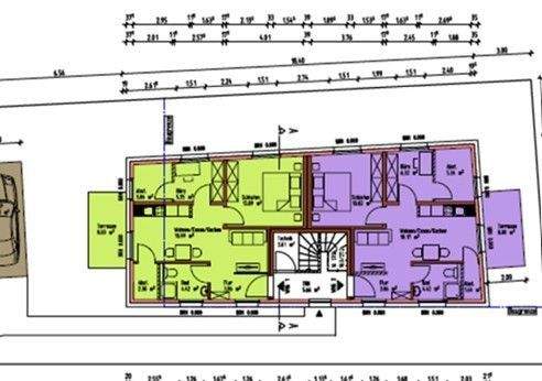
Erdgeschoss
Bezug
01.11.2026
Wohnanlage
Energie & Heizung
Warum sehe ich diese Anzeige? – Du siehst diese Anzeige basierend auf Ihrer Navigation auf unserer Website und den Suchkriterien, die du verwendet hast.
Weitere Energiedaten
Heizungsart
Fußbodenheizung, Luft-/Wasser-Wärmepumpe
Details
Objektbeschreibung
Willkommen in Ihrem neuen Zuhause. Es entstehen drei moderne Eigentumswohnungen, die durch ihre energieeffiziente Bauweise überzeugen. Dank moderner Dämmung, innovativer Haustechnik und guten Materialien profitieren Sie von niedrigen Energiekosten und einem angenehmen Raumklima. Großzügige Räume, gute Grundrisse , private...
Ausstattung
Effizienzhaus 40
elektrische Jalousien
Fußbodenheizung
Luft- Wärme- Pumpe
Fahrradabstellraum auf dem Grundstück
zu jeder Wohnung gehört ein PKW- Stellplatz, der im Kaufpreis enthalten ist. Die Stellplätze werden mit Anschlüssen für eine Ladestation ausgestattet.
Preisinformation
1 Stellplatz
Weitere Informationen
Sonstiges
Wohnung 2 ist bereits reserviert.
Stichworte
Anzahl der Schlafzimmer: 2, Anzahl der Badezimmer: 1, Anzahl Terrassen: 1
Online-ID: 2kgc45z
Referenznummer: OIK-322
Finde Angebote wie dieses
Weitere Immobilien
Hier geht es zu unserem Impressum, den Allgemeinen Geschäftsbedingungen, den Hinweisen zum Datenschutz und nutzungsbasierter Online-Werbung.