

Sirius Facilities GmbH
Herr Felix Meier
080 ···
Nr. anzeigenPreise & Kosten
Kaution
3 Bruttowarmmieten
Provision für Mieter
Die Vermietung erfolgt provisionsfrei!
Warum sehe ich diese Anzeige? – Du siehst diese Anzeige basierend auf Ihrer Navigation auf unserer Website und den Suchkriterien, die du verwendet hast.
Lage
Der Sirius Business Parks Rostock befindet sich in einem lebendigen Gewerbegebiet am Ufer der Unterwarnow zwischen Rostock und Warnemünde. Ein großer Standortvorteil ist die Nähe zur HanseMesse Rostock: Der wichtigste Messestandort im Nordosten Deutschlands ist nur 5 Minuten entfernt. Der Gewerbepark ist zudem gute ans...
Die Industriefläche
Kategorie
Lagerhalle
Energie & Heizung
Warum sehe ich diese Anzeige? – Du siehst diese Anzeige basierend auf Ihrer Navigation auf unserer Website und den Suchkriterien, die du verwendet hast.
Weitere Energiedaten
Heizungsart
Zentralheizung
Details
Objektbeschreibung
In der Hansestadt Rostock ist der Sirius Business Park eine top Adresse für vielseitige Gewerbeflächen, vom Büo über Lager bis zu Produktionsflächen. Der Standort überzeugt mit optimaler Anbindung,Parkplätzen sowie einem Fitnessstudio vor Ort. Diese Vorteile haben schon viele Unternehmen der Region angezogen, sodass sich hier...
Ausstattung
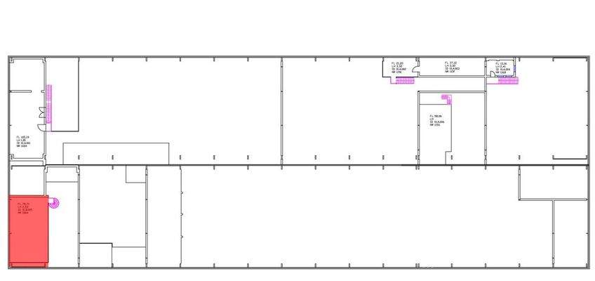
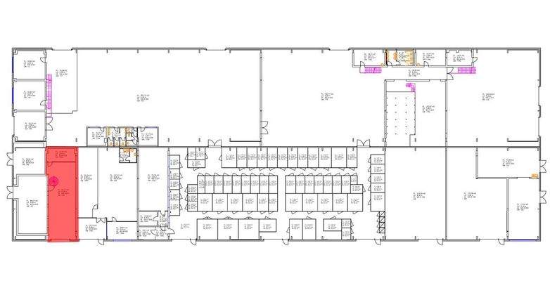
. Gesamtfläche: 173,23 m² im EG & 1.OG (Halle 80,74 m²)
. voll erschlossen, mit Center Management und Sicherheitsdienst
. Technische Ausstattung: Starkstromanschluss, Etagenheizung, 24/7 Zugang
. Service inklusive: Empfang, Postannahme.
. Bodenbeläge: Laminat
. Verfügbarkeit : Ab sofort
Rufen...
Weitere Informationen
Sonstiges
Die Abbildungen bzw. die Fotos der Mietflächen dienen lediglich der optischen Orientierung. Die Abbildungen der Mietflächen begründen keinen Anspruch auf ihren Erhalt und bedeuten nicht, dass diese, wie abgebildet, auch zur Verfügung stehen. Für genauere Informationen zu den Mietflächen ist die...
Dokumente
Anbieter der Immobilie

Online-ID: 2kgcw5h
Referenznummer: A12072
Finde Angebote wie dieses
Hier geht es zu unserem Impressum, den Allgemeinen Geschäftsbedingungen, den Hinweisen zum Datenschutz und nutzungsbasierter Online-Werbung.