

Bölts Immobilien OHG
Herr/Frau Andreas Bölts
042 ···
Nr. anzeigenPreise & Kosten
Provision für Käufer
Bitte beachte, das Angebot kann bei Vertragsabschluss die Zahlung einer Provision beinhalten. Weitere Informationen erhältst Du vom Anbieter.
Lage
Artà liegt im Nordosten der Insel Mallorca, rund 60 km von der Inselhauptstadt Palma entfernt. Mehr als die Hälfte der Gemeindefläche wird vom Massís d'Artà eingenommen, dem höchsten und kompaktesten Massiv der östlichen Bergketten der Serres de Llevant.
Der ca. 7.400 Einwohner zählende Ort Artà liegt im Nordosten von...
Das Haus
Kategorie
Einfamilienhaus
Baujahr
2024
Bezug
nach Vereinbarung
Energie & Heizung
Warum sehe ich diese Anzeige? – Du siehst diese Anzeige basierend auf Ihrer Navigation auf unserer Website und den Suchkriterien, die du verwendet hast.
Energieausweistyp
Bedarfsausweis
Gebäudetyp
Wohngebäude
Baujahr laut Energieausweis
2024
Wesentliche Energieträger
Solarheizung
Gültigkeit
18.02.2021 bis 19.02.2031
Effizienzklasse
A+
Endenergiebedarf
56,60 kWh/(m²·a)
Weitere Energiedaten
Haustyp
Massivhaus
Energieträger
Solar
Heizungsart
offener Kamin
Details
Objektbeschreibung
Traumhafte Finca in Artá mit fantastischem Weitblick auf die umliegende Landschaft.
Bei dieser Finca handelt es sich um einen Neubau im Erstbezug. Das Haus ist mit höchstwertigen Materialien gebaut und mit modernen Elementen und Smart Home Technologie ausgestattet, so dass am Ende eine luxuriöse, moderne Finca im...
Ausstattung
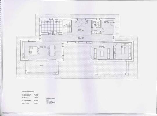
Die genaue Aufteilung der Finca entnehmen Sie bitte den beigefügten Grundrissen.
Des Weiteren möchten wir noch auf einige Ausstattungsmerkmale hinweisen:
top moderner Kamin im Wohnbereich
Boden aus Naturstein
hochwertige Einbauschränke mit LED
hochwertige, geschmackvolle SieMatic-Einbauküche
hochwertige...
Preisinformation
6 Stellplätze
Weitere Informationen
Sonstiges
Dieses Objekt wird mit unserem Kooperationpartner der Firma ARTAIMMOBILIEN, Calle Ciutat,44 in 07550 Artà/Mallorca angeboten. Besichtigungstermine können über uns oder über die Firma artaimmobilien abgestimmt werden.
Stichworte
Stellplatz vorhanden, Anzahl der Schlafzimmer: 4, Anzahl der Badezimmer: 6...
Anbieter der Immobilie
Bölts Immobilien OHG
Osterdeich 15, 28203 Bremen

Online-ID: 2kgml5m
Referenznummer: 8948#cxYN2f
Finde Angebote wie dieses
Hier geht es zu unserem Impressum, den Allgemeinen Geschäftsbedingungen, den Hinweisen zum Datenschutz und nutzungsbasierter Online-Werbung.