
morespace real estate gmbh
Herr Manuel Hennings
004 ···
Nr. anzeigenPreise & Kosten
Provision für Mieter
Bitte beachte, das Angebot kann bei Vertragsabschluss die Zahlung einer Provision beinhalten. Weitere Informationen erhältst Du vom Anbieter.
Warum sehe ich diese Anzeige? – Du siehst diese Anzeige basierend auf Ihrer Navigation auf unserer Website und den Suchkriterien, die du verwendet hast.
Lage
Inmitten multikultureller Umgebung direkt in Berlin-Kreuzberg finden Sie ein kreativesund produktives wie auch herausforderndes Arbeits- und Lebensumfeld, wie man es in Berlin nur an wenigen Orten antrifft.Mit der U-Bahn, erreichen Sie z.B. den Potsdamer Platz in 10 Min., den Alexanderplatz in 15 Min. sowie viele andere...
Büro-/Praxisfläche
Baujahr
1912
Details
Objektbeschreibung
Die Lichtfabrik ist ein fünfgeschossiger Gewerbehof im Herzen Kreuzbergs, der die Kohlfurter Straße 41/43 mit der Kottbusser Straße 10 verbindet. Zum Gebäudekomplex gehört ebenfalls das Wohn- und Geschäftshaus Kottbusser Straße 9.
Im Gewerbehof wird ein Zentrum kreativer Arbeit entstehen. Nach aufwendiger Sanierung im...
Ausstattung
Urban
Flexibel
Effizient
Openspace
Aufzug
Parkett
Sichtbeton
Kappendecke
Teeküche
Betonboden
Urban
Flexible
Efficient
Openspace
Elevator
Parquet
Exposed concrete
Capped ceiling
Kitchenette
Concrete floor
Preisinformation
ab 19,50 EUR/qm
Weitere Informationen
Sonstiges
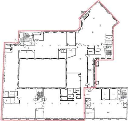
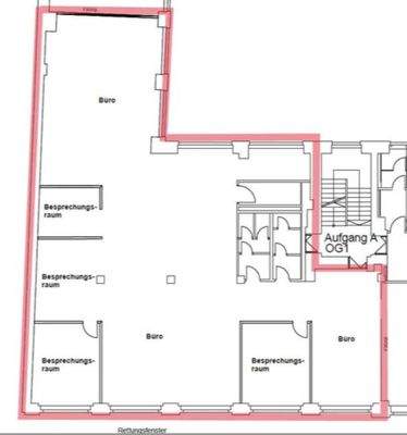
Folgende Flächen stehen zur Verfügung:
- 1. OG mit ca. 355 qm ab 19,50 €/qm ab 01.11.2025
- 2. OG mit ca. 843 qm ab 19,50 €/qm
- 3. OG mit ca. 364 qm ab 19,50 €/qm
- 4. OG mit ca. 1811 qm ab 19,50 €/qm ab 01.12.2025
The following areas are available:
- 1st floor with approx. 355 sqm...
Anbieter der Immobilie
Online-ID: 2kgmv5l
Referenznummer: MS4554
Finde Angebote wie dieses
Hier geht es zu unserem Impressum, den Allgemeinen Geschäftsbedingungen, den Hinweisen zum Datenschutz und nutzungsbasierter Online-Werbung.