
corealis Commercial Real Estate GmbH
+49 ···
Nr. anzeigenPreise & Kosten
Provision für Mieter
provisionsfrei
Warum sehe ich diese Anzeige? – Du siehst diese Anzeige basierend auf Ihrer Navigation auf unserer Website und den Suchkriterien, die du verwendet hast.
Lage
Das Objekt liegt im Düsseldorfer Stadtteil Golzheim und ist vom südlich gelegenen Bürostandort "Kennedydamm", an dem Unternehmen wie E.ON und L'Oreal ansässig sind, durch die B7/Theodor-Heuss-Brücke räumlich getrennt. Während rund um das Objekt Büronutzungen dominieren, nimmt nach Norden und Westen der Anteil der Wohnbebauung...
Büro-/Praxisfläche
Kategorie
Bürofläche
Baujahr
1998
Bezug
01.03.2026
Geschoss
1. Geschoss
Details
Objektbeschreibung
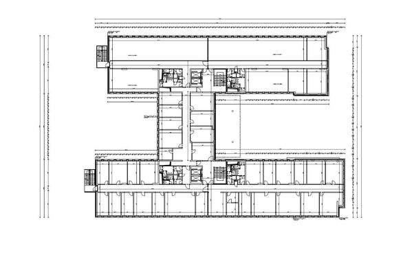
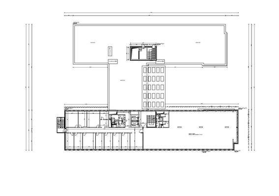
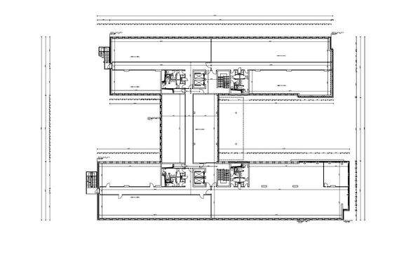
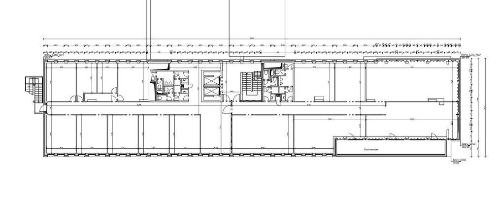
Das Gebäude hat eine H-förmige Struktur und besteht aus zwei parallelen Gebäudeteilen mit jeweils 4 bzw. 7 Obergeschossen und einem mittleren, 4-geschossigen Verbindungstrakt. Empfangen werden Nutzer wie Besucher in einer großzügigen und repräsentativen Eingangshalle. Die einzelnen Geschosse bieten dem Nutzer Möglichkeiten...
Ausstattung
- 4 Personenaufzüge
- modern eingerichtete Teeküche pro Mieteinheit
- flexible Flächenaufteilung
- außenliegender elektrischer Sonnenschutz pro Fensterachse ( außer Nordseite )
- Hohlraumboden
- abgehängte Decken mit integrierter BAP-Beleuchtung
Preisinformation
145 Tiefgaragenstellplätze, Miete je: 110,00 EUR
Weitere Informationen
Stichworte
Gesamtfläche: 374,00 m², Bundesland: Nordrhein-Westfalen, 7 Etagen
Anbieter der Immobilie
Online-ID: 2kgr75j
Referenznummer: 1958_026
Finde Angebote wie dieses
Hier geht es zu unserem Impressum, den Allgemeinen Geschäftsbedingungen, den Hinweisen zum Datenschutz und nutzungsbasierter Online-Werbung.