

Terrania GmbH
Frau Nuria Dost
+49 ···
Nr. anzeigenPreise & Kosten
zzgl. Nebenkosten
Kaution
98.463,45
Provision für Mieter
provisionsfrei
Warum sehe ich diese Anzeige? – Du siehst diese Anzeige basierend auf Ihrer Navigation auf unserer Website und den Suchkriterien, die du verwendet hast.
Lage
Die Liegenschaft Röntgenstraße 2-4/Borsigallee 45, 60388 Frankfurt befindet sich im Stadtteil Frankfurt Bergen-Enkheim.
Die Mieträume befinden sich direkt gegenüber einem seit Jahrzehnten erfolgreich betriebenen Einkaufscenter, dem ''Hessen Center''. Ebenfalls in unmittelbarer Nähe gibt es die ''Homeboxx'' mit den Mietern...
Die Ladenfläche
Baujahr
1968
Bezug
Nach Vereinbarung
Energie & Heizung
Warum sehe ich diese Anzeige? – Du siehst diese Anzeige basierend auf Ihrer Navigation auf unserer Website und den Suchkriterien, die du verwendet hast.
Wärme
Strom
Energieausweistyp
Verbrauchsausweis
Gebäudetyp
Nicht-Wohngebäude
Baujahr laut Energieausweis
1968
Wesentliche Energieträger
Öl
Gültigkeit
30.10.2024 bis 30.10.2034
Endenergieverbrauch (Wärme)
77,70 kWh/(m²·a)
Endenergieverbrauch (Strom)
25,30 kWh/(m²·a)
Weitere Energiedaten
Energieträger
Öl
Details
Objektbeschreibung
Diese großzügige Gewerbefläche steht Ihnen in einem Solitär mit alleinigen Zugang zur Verfügung.
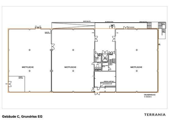
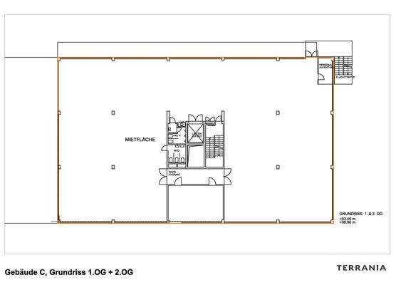
Die aktuell genehmigte Nutzung besteht für Möbel-Einzelhandel und erstreckt sich über drei Etagen (EG, 1. und 2. OG) und umfasst Verkaufs-, Ausstellungs- und Lagerflächen.
Es sind auch andere Nutzungskonzepte möglich...
Ausstattung
Aufteilung Gewerbefläche:
- Erdgeschoss (ca. 1344 m²): Verkaufsfläche, Ausstellungsfläche, Lagerfläche, Vorraum
- 1. Obergeschoss (ca. 960 m²): Ausstellungsfläche
- 2. Obergeschoss (ca. 960 m²): Ausstellungsfläche
- insg. 6 separate WC-Anlagen, je 2 pro Geschoss
- Teeküchenanschluss
- Betonboden im EG...
Weitere Informationen
Sonstiges
Die Vermietung erfolgt direkt über den Eigentümer und ist für Sie provisionsfrei.
Stichworte
Nutzfläche: 3.264,00 m², Gesamtfläche: 3.264,00 m², Anzahl der separaten WCs: 6, 3 Etagen
Dokumente
Anbieter der Immobilie
Terrania GmbH
Sendlinger Straße 47, 80331 München

Online-ID: 2kgur5y
Referenznummer: 11513_101#htIX7e
Finde Angebote wie dieses
Hier geht es zu unserem Impressum, den Allgemeinen Geschäftsbedingungen, den Hinweisen zum Datenschutz und nutzungsbasierter Online-Werbung.