
infrabau GmbH
004 ···
Nr. anzeigenPreise & Kosten
Provision für Käufer
Bitte beachte, das Angebot kann bei Vertragsabschluss die Zahlung einer Provision beinhalten. Weitere Informationen erhältst Du vom Anbieter.
Lage
Das Reihenhaus befindet sich in zentraler und dennoch ruhiger Lage von Diedorf - nur wenige Gehminuten vom Ortszentrum (ca.?300?m) und dem Bahnhof entfernt.
Die hervorragende Infrastruktur macht das Leben hier besonders angenehm: Ein Kindergarten ist in etwa 600?m erreichbar, die Grundschule liegt ca.?1,4?km entfernt...
Das Haus
Kategorie
Reihenmittelhaus
Baujahr
2026
Details
Objektbeschreibung
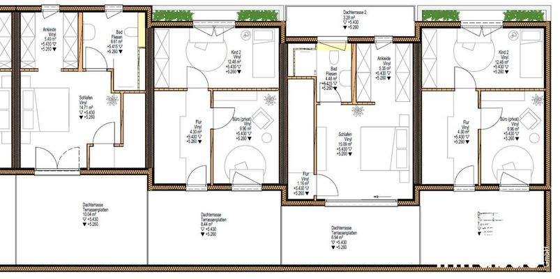
Dieses großzügige Reihenhaus auf der Bahnhofstraße 15 in Diedorf vereint moderne Architektur mit einem durchdachten Raumkonzept über drei Ebenen.
Da es im Bauvorhaben unterschiedliche Grundrisse gibt, wird in diesem Exposé Bezug auf das Reihenhaus 7 genommen.
Mit einer Wohnfläche von ca. 136 ?m² und einer...
Ausstattung
Das Haus wir nach dem energieeffizienten KfW-55-Standard gebaut und überzeugt durch eine hochwertige Ausstattung.
Für besten Wärmeschutz sorgt eine dreifach verglaste Fensteranlage, die gleichzeitig Schallschutz auf höchstem Niveau bietet.
Die Sanitärausstattung ist modern und elegant, mit formschönen Armaturen...
Preisinformation
1 Stellplatz, Kaufpreis: 15.000,00 EUR
1 Garagenstellplatz, Kaufpreis: 29.900,00 EUR
Weitere Informationen
Sonstiges
Die gezeigte Visualisierung sowie die beigefügten Pläne dienen ausschließlich der Veranschaulichung und sind nicht rechtsverbindlich.
Maßgeblich sind allein die Baubeschreibung und der Kaufvertrag einschließlich der verbindlichen Planunterlagen.
Stichworte
Nutzfläche: 47,00 m², Anzahl der...
Anbieter der Immobilie
Online-ID: 2kguy5r
Referenznummer: 218
Finde Angebote wie dieses
Hier geht es zu unserem Impressum, den Allgemeinen Geschäftsbedingungen, den Hinweisen zum Datenschutz und nutzungsbasierter Online-Werbung.