

Einfamilienhaus zum Kauf1900000 €7.037 €/m²8 Zimmer • 270 m² • 160 m² Grundstück
1900000 €
7.037 €/m²
8 Zimmer • 270 m² • 160 m² Grundstück
Villa am See mit privatem Bootshaus
Merkmale
- 160 m² Grundstück
- Personenaufzug
- Kein Keller
- Garage
- Balkon
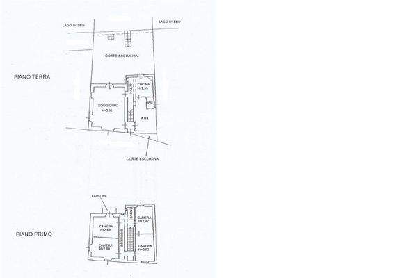
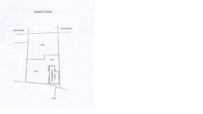
Grundrisse
Grundrisse
1 / 2
Realisiere Dein Projekt
Bausubstanz und Energie
Möchtest du Details zum Energieverbrauch?

- Baujahr1975
- HeizungsartFußbodenheizung
Preisdetails
Kaufpreis
1900000 €
7.037,04 €/m²
Preis pro Stellplatz
2000000 €
Provision für Käufer
ja maklerprovision im Preis nicht inbegriffen
Weitere Preisinformationen
1 Garagenstellplatz, Kaufpreis: 2.000.000,00 EUR
Lage

Sulzano (25058)
Der Anbieter hat die genaue Adresse nicht freigegeben
Weitere Informationen
Weitere Services
Lust auf eine Besichtigung?
Eine Frage zur Immobilie?
Über den Anbieter
Via Meucci 77, 25080 PADENGHE SUL GARDA
Partnerschaft

Frau Olga HellerDein Kontakt
Online-ID: 2594K6Z2K1CZ
Referenznummer: IS-32


Garda Haus Srl
Wie zufrieden bist du mit dieser Seite (nicht mit der Immobilie selbst)?

