
Debeka Bausparkasse AG
Herr Igor Tassotto
Kontaktiere den Anbieter schriftlich, es ist keine Telefonnummer hinterlegt.
Preise & Kosten
Provision für Käufer
3,57% inkl. MwSt.
Lage
Dannau selbst besticht durch seine idyllische Lage zwischen Seen, Wäldern und sanften Hügeln. Ob Spaziergänge in der Natur, Fahrradtouren oder ein Sprung in den nahegelegenen Selenter See - die Umgebung bietet Erholung pur. Die Dorfgemeinschaft ist herzlich, das Leben entschleunigt - und doch sind alle wichtigen Einrichtungen...
Das Haus
Kategorie
Bungalow
Baujahr
2002
Bezug
sofort
Energie & Heizung
Warum sehe ich diese Anzeige? – Du siehst diese Anzeige basierend auf Ihrer Navigation auf unserer Website und den Suchkriterien, die du verwendet hast.
Energieausweistyp
Verbrauchsausweis
Gebäudetyp
Wohngebäude
Baujahr laut Energieausweis
2002
Wesentliche Energieträger
Gas
Gültigkeit
03.06.2025 bis 02.06.2035
Effizienzklasse
B
Endenergieverbrauch
70,80 kWh/(m²·a)
Weitere Energiedaten
Energieträger
Gas
Heizungsart
Etagenheizung
Details
Objektbeschreibung
Ein Blockbohlenhaus zum Verlieben - Natur pur in Dannau bei Plön
Inmitten der reizvollen Landschaft der Holsteinischen Schweiz erwartet Sie ein ganz besonderes Zuhause: Ein charmantes Blockbohlenhaus, eingebettet in die ruhige und naturverbundene Gemeinde Dannau, nur wenige Minuten vom Luftkurort Plön...
Ausstattung
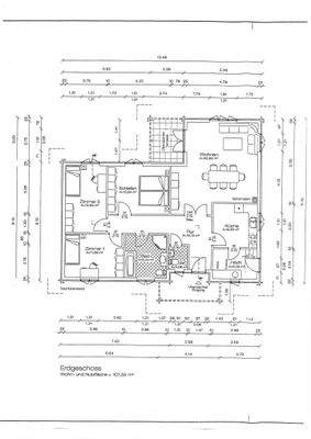
Wohnen, Küche, Schlafen, Kind1, Kind2, Flur, HWR, Bad, Gäste WC, Terrasse
Weitere Informationen
Sonstiges
Die genannten Informationen beruhen auf den Angaben des Verkäufers. Für die Richtigkeit und Vollständigkeit der Angaben wird keine Gewähr oder Haftung übernommen.
Seit dem 25. Mai 2018 gilt nach einer zweijährigen Übergangszeit in Deutschland die EU-Datenschutz-Grundverordnung (DS-GVO). Sie regelt, wie...
Anbieter der Immobilie

Debeka Bausparkasse AG
Debeka-Platz 2, 56073 Koblenz
Herr Igor Tassotto
Dein Ansprechpartner
Kontaktiere den Anbieter schriftlich, es ist keine Telefonnummer hinterlegt.
Online-ID: 2kgzj5m
Referenznummer: 1008168#4Fd7ty
Finde Angebote wie dieses
Hier geht es zu unserem Impressum, den Allgemeinen Geschäftsbedingungen, den Hinweisen zum Datenschutz und nutzungsbasierter Online-Werbung.