
City Immobilien GmbH
Herr Armin Burkhard
004 ···
Nr. anzeigenPreise & Kosten
Provision für Käufer
3,57 % inkl. gesetzl. MwSt.
Lage
Mantel, mit der Postleitzahl 92708, ist eine kleine Gemeinde in Bayern mit einer Einwohnerzahl von etwa 2.500 Personen. Die Gemeinde liegt in der Oberpfalz und bietet eine gute Anbindung an das Verkehrsnetz. Die Autobahn A93 ist in kurzer Zeit erreichbar und ermöglicht eine zügige Verbindung in Richtung Regensburg, das etwa...
Das Haus
Kategorie
Mehrfamilienhaus
Baujahr
1910
Bezug
sofort
Energie & Heizung
Warum sehe ich diese Anzeige? – Du siehst diese Anzeige basierend auf Ihrer Navigation auf unserer Website und den Suchkriterien, die du verwendet hast.
Energieausweistyp
Bedarfsausweis
Gebäudetyp
Wohngebäude
Baujahr laut Energieausweis
1910
Gültigkeit
bis 22.07.2035
Effizienzklasse
A+
Endenergiebedarf
28,70 kWh/(m²·a)
Weitere Energiedaten
Haustyp
Massivhaus
Heizungsart
Zentralheizung
Details
Objektbeschreibung
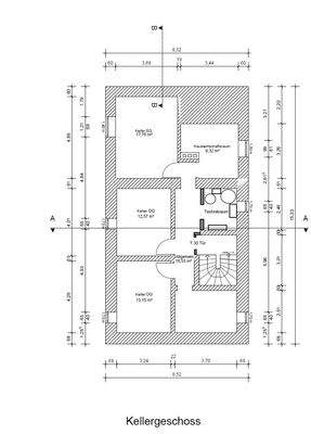
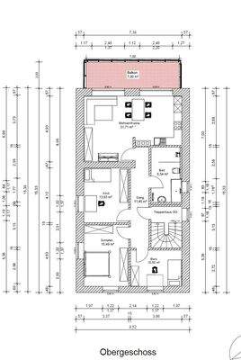
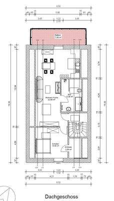
Das Wohnhaus wurde im Ursprung 1910 erbaut, 1975 angebaut und aufgestockt, in den Jahren 2023 bis Mitte 2025 kernsaniert. Das Objekt bietet drei Wohnungen mit einer Wohnfläche von 262 m² und besticht mit klaren Linien. Die Grundstücksgröße beträgt 605 m².
Beim Betreten des Hauses empfängt Sie ein einladender Flur...
Ausstattung
- Mehrfamilienhaus mit 262 m² Wohnfläche
- Grundstücksfläche 605 m²
- Terrasse und Balkone
- Badezimmer mit Badewanne und Dusche
- Hochwertige Fliesen in Bad und Flur
- Vinylboden in Wohn- und Schlafbereichen
- Großzügiger Wohn-Essbereich
- Drei Garagen auf dem Grundstück
- Keller mit Waschkeller
-...
Preisinformation
3 Garagenstellplätze
Weitere Informationen
Stichworte
Anzahl Balkone: 2, Anzahl Terrassen: 1
Anbieter der Immobilie

City Immobilien GmbH
Wörthstraße 9 , 92637 Weiden
Online-ID: 2kh3v5x
Referenznummer: 4502
Finde Angebote wie dieses
Hier geht es zu unserem Impressum, den Allgemeinen Geschäftsbedingungen, den Hinweisen zum Datenschutz und nutzungsbasierter Online-Werbung.